
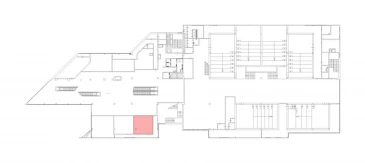
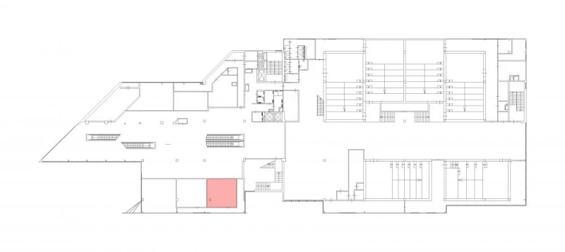
Малый пр-кт В.О.-зА (Корпус 2)-03 36.2 кв.м Общ. питание 2999
36.2 м²
площадь2999 ₽
за м²108 563,8 ₽
за месяц














Характеристики
| Район: | Василеостровский |
| Метро: | Приморская |
| Торговый центр | Шкиперский молл |
| Этаж: | 3 |
Безопасность
| Охрана: | круглосуточная охрана |
| Контроль доступа: | в наличии |
Коммуникации
| Телефон: | есть |
| Интернет: | Оптоволокно |
В арендную плату входит
Профессиональное управление
НДС
Оплачивается отдельно
Водоснабжение
Электроснабжение
Отопление
Описание
Сдаётся в аренду помещение площадью 36.2 кв. м на фудкорте торгового центра "Шкиперский Молл". Прекрасно подойдет для открытия ресторана быстрого питания или кафе-мороженого. Предлагаемая площадь уже оснащена выделенной электроэнергией, отоплением и освещением. Дополнительно оплачивается доступ к высокоскоростному интернету и цифровой телефонии. Во избежание возникновения аварийных ситуаций установлены датчики пожарной сигнализации. В круглосуточном режиме осуществляются охрана территории и видеомониторинг периметра. Ближайшая станция метро "Приморская" находится в пешей доступности, рядом имеется съезд на ЗСД.
Запись на просмотр
Пользовательским соглашением
Мы свяжемся с вами
в рабочее время
пн-пт с 09:00 до 18:00





