
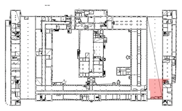
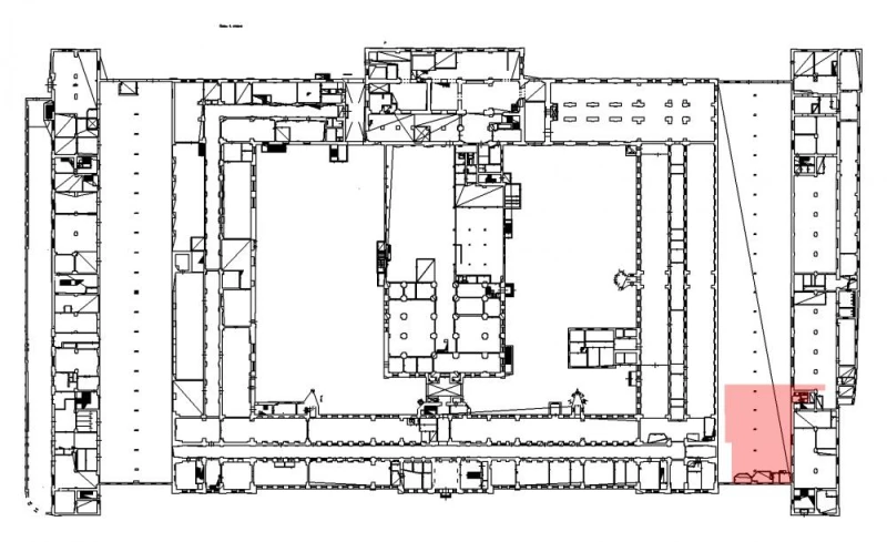
Комс,2-зА-01 666.7 кв.м Общ. питание 649
666.7 м²
площадь649 ₽
за м²432 688,3 ₽
за месяц

























Характеристики
| Район: | Калининский |
| Метро: | Площадь Ленина |
| Технопарк | "Арсенал", Комсомола 2 |
| Этаж: | 1 |
Безопасность
| Охрана: | круглосуточная охрана |
| Контроль доступа: | в наличии |
Коммуникации
| Телефон: | есть |
| Интернет: | Оптоволокно |
В арендную плату входит
Профессиональное управление
НДС
Оплачивается отдельно
Водоснабжение
Электроснабжение
Отопление
Описание
Аренда помещения под арт-кафе в Калининском районе города. Помещение площадью 666,7 кв. м расположено на территории пространства Арсенал. Отдельный вход с улицы Комсомола. Высокие сводчатые потолки и арочные окна. Проведены инженерные системы и коммуникации, интернет и телефония, есть санузел. Здесь уже открыты концертные и банкетные залы, скалодром и кафе. Охрана 24 часа. Более подробную информацию можете узнать у менеджеров колл-центра.
Запись на просмотр
Пользовательским соглашением
Мы свяжемся с вами
в рабочее время
пн-пт с 09:00 до 18:00







