
Звенигородская-зК-01 800 кв.м Общ. питание 969
800 м²
площадь969 ₽
за м²775 200 ₽
за месяц























Характеристики
| Район: | Адмиралтейский |
| Метро: | Звенигородская |
| Бизнес-центр | "Звенигородский" бизнес-центр |
| Этаж: | 1 |
Безопасность
| Охрана: | круглосуточная охрана |
| Контроль доступа: | в наличии |
Коммуникации
| Телефон: | есть |
| Интернет: | Оптоволокно |
В арендную плату входит
Профессиональное управление
НДС
Оплачивается отдельно
Водоснабжение
Электроснабжение
Отопление
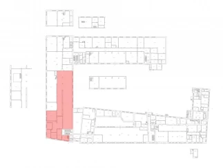
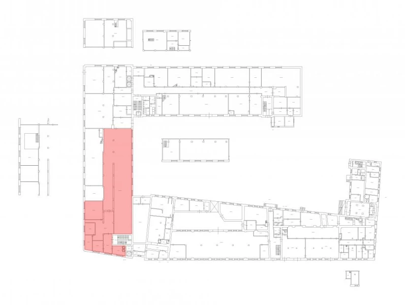
Описание
Просторное помещение для ресторана в историческом здании. Предлагаем в аренду уникальное пространство на первом этаже по адресу: ул. Звенигородская, дом 9–11. Это отличная площадка для реализации гастрономического проекта. Бывшие производственные площади с широкими возможностями перепланировки. Среди ключевых особенностей: -панорамные окна; -потолки повышенной высоты; -отличная освещённость. Помещение находится в историческом центре города, где: -наблюдается интенсивный пешеходный поток; -обеспечена удобная транспортная доступность. Пространство позволяет организовать просторный основной зал, обособленные приватные зоны, профессиональную кухню и подсобные помещения, стильную барную зону, отдельные кабинеты. Объект подключён к центральным сетям: водоснабжение; канализация; электроснабжение. Здание оборудовано современными охранными системами, пожарной сигнализацией. Архитектурные особенности помещения открывают широкие возможности для дизайна: -создание эксклюзивного интерьера; -использование естественного освещения через большие окна; -реализация эффектных решений благодаря высоким потолкам. Воплотите свою ресторанную мечту в одном из самых престижных локаций города! Мы поможем реализовать вашу концепцию на высшем уровне.
Запись на просмотр
Пользовательским соглашением
Мы свяжемся с вами
в рабочее время
пн-пт с 09:00 до 18:00







