
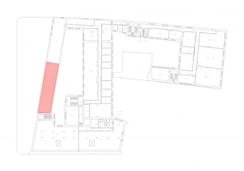
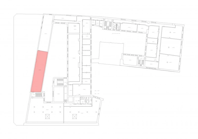
Мира-зА-05 146.2 кв.м Офис 412
146.2 м²
площадь412 ₽
за м²60 234,4 ₽
за месяц








Характеристики
| Район: | Петроградский |
| Метро: | Горьковская |
| Бизнес-центр | "Троицкий" бизнес-центр |
| Этаж: | 5 |
Безопасность
| Охрана: | круглосуточная охрана |
| Контроль доступа: | в наличии |
Коммуникации
| Телефон: | есть |
| Интернет: | Оптоволокно |
В арендную плату входит
Профессиональное управление
НДС
Оплачивается отдельно
Водоснабжение
Электроснабжение
Отопление
Описание
Офис в аренду в Петроградском районе города. В 5 минутах - станция метро "Горьковская". Площадь помещения - 146.2 кв. м. Свободная планировка. Помещение оснащено: отоплением, освещением, пожарной сигнализацией. Действует круглосуточная охрана, проход осуществляется по электронным картам. Охрана 24 часа. Возможен круглосуточный режим работы.
Запись на просмотр
Пользовательским соглашением
Мы свяжемся с вами
в рабочее время
пн-пт с 09:00 до 18:00








