
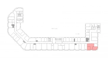
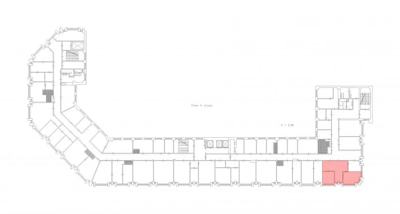
Конст2-зА-04 64.1 кв.м Офис 896
64.1 м²
площадь896 ₽
за м²57 433,6 ₽
за месяц














Характеристики
| Район: | Московский |
| Метро: | Московская |
| Бизнес-центр | "К-2" бизнес-центр |
| Этаж: | 4 |
Безопасность
| Охрана: | круглосуточная охрана |
| Контроль доступа: | в наличии |
Коммуникации
| Телефон: | есть |
| Интернет: | Оптоволокно |
В арендную плату входит
Профессиональное управление
НДС
Оплачивается отдельно
Водоснабжение
Электроснабжение
Отопление
Описание
Аренда помещения под творческую мастерскую у станции метро "Московская". Блок площадью 64.1 кв. м расположен на 4-м этаже БЦ. Кабинетная планировка. Отделка: подвесные потолки, светлые окрашенные обои, ковролин. Проведены необходимые инженерные коммуникации: освещение, отопление, пожарная сигнализация. Дополнительные услуги связи: высокоскоростной интернет и цифровая телефония. Охрана 24 часа, на территории действует система СКУД. На территории развитая инфраструктура: парковка, столовая. Бизнес-центр имеет отличную транспортную доступность: рядом расположены Ленинский и Московский проспект, выезд на ЗСД.
Запись на просмотр
Пользовательским соглашением
Мы свяжемся с вами
в рабочее время
пн-пт с 09:00 до 18:00






