
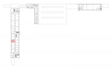
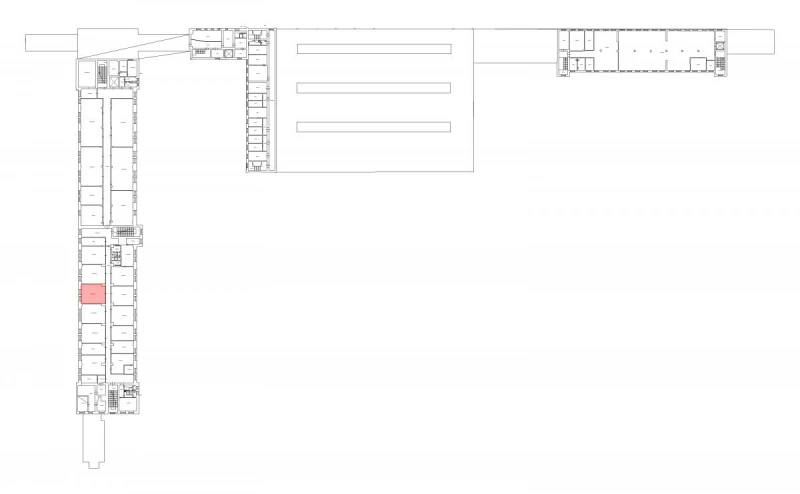
Швец41-зА-03 47 кв.м Офис 871
47 м²
площадь871 ₽
за м²40 937 ₽
за месяц









Характеристики
| Район: | Кировский |
| Метро: | Нарвская |
| Технопарк | "Нарвский" технопарк, Швецова 41 |
| Этаж: | 3 |
Безопасность
| Охрана: | круглосуточная охрана |
| Контроль доступа: | в наличии |
Коммуникации
| Телефон: | есть |
| Интернет: | Оптоволокно |
В арендную плату входит
Профессиональное управление
НДС
Оплачивается отдельно
Водоснабжение
Электроснабжение
Отопление
Описание
Аренда помещения под офис в Кировском районе города. 3-й этаж БЦ по адресу: ул. Швецова, д. 41. Коридорно-кабинетная планировка. Выполнена качественная отделка. К услугам арендаторов: парковка, магазины, кафе. Охрана 24 часа. Проход осуществляется по электронным картам доступа.
Запись на просмотр
Пользовательским соглашением
Мы свяжемся с вами
в рабочее время
пн-пт с 09:00 до 18:00








