
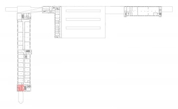
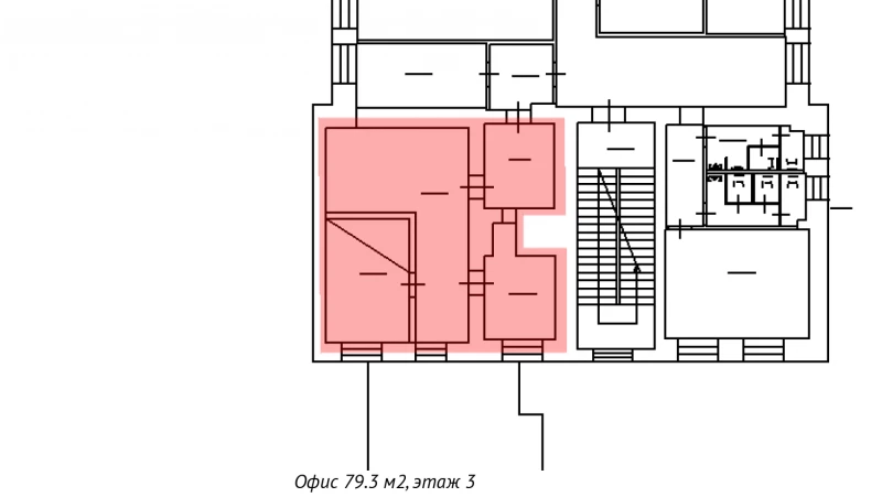
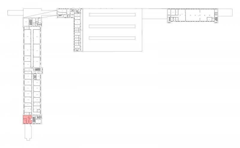
Швец41-зА-03 79.4 кв.м Офис 738
79.4 м²
площадь738 ₽
за м²58 597,2 ₽
за месяц











Характеристики
| Район: | Кировский |
| Метро: | Нарвская |
| Технопарк | "Нарвский" технопарк, Швецова 41 |
| Этаж: | 3 |
Безопасность
| Охрана: | круглосуточная охрана |
| Контроль доступа: | в наличии |
Коммуникации
| Телефон: | есть |
| Интернет: | Оптоволокно |
В арендную плату входит
Профессиональное управление
НДС
Оплачивается отдельно
Водоснабжение
Электроснабжение
Отопление
Описание
Аренда офисного блока в бц "Тентельхофф". Расположение: Кировский район, ул. Швецова, дом 41. Описание объекта: *Современный офисный блок с качественным евроремонтом. *Помещение полностью готово к эксплуатации. *Удобное расположение в деловом центре города. Технические характеристики: *Коммуникации- отопление, выделенная электроэнергия, освещение. *Связь- цифровая телефония, высокоскоростной интернет. *Безопасность- круглосуточная охрана территории, система контроля доступа. Инфраструктура бизнес-центра: *Профессиональный ресепшен. *Просторная парковка для сотрудников и гостей. *Столовая на территории. Транспортная доступность: *Станция метро "Нарвская"- 16 минут пешком. *Станция метро "Балтийская"- 19 минут пешком. *Удобный выезд на основные магистрали. Преимущества: *Прямая аренда от собственника. *Развитая инфраструктура делового центра. *Комфортные условия для работы. *Безопасность и надежность. Помещение идеально подойдет для размещения офиса любой компании, которая ценит комфорт, безопасность и удобное расположение.
Запись на просмотр
Пользовательским соглашением
Мы свяжемся с вами
в рабочее время
пн-пт с 09:00 до 18:00







