
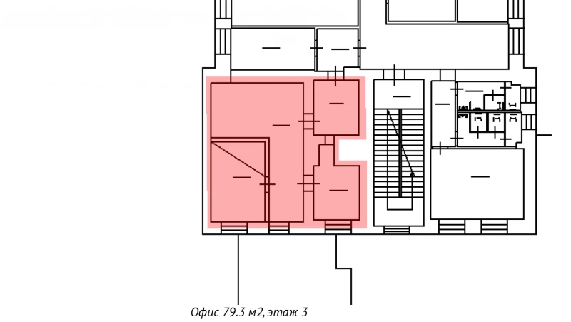
Швец41-зА-03 79.4 кв.м Офис 1019
79.4 м²
площадь1019 ₽
за м²80 908,6 ₽
за месяц











Характеристики
| Район: | Кировский |
| Метро: | Нарвская |
| Технопарк | "Нарвский" технопарк, Швецова 41 |
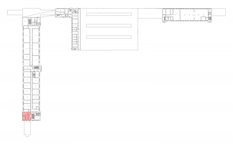
| Этаж: | 3 |
Безопасность
| Охрана: | круглосуточная охрана |
| Контроль доступа: | в наличии |
Коммуникации
| Телефон: | есть |
| Интернет: | Оптоволокно |
В арендную плату входит
Профессиональное управление
НДС
Оплачивается отдельно
Водоснабжение
Электроснабжение
Отопление
Описание
Аренда престижного офисного помещения для нотариуса. Предлагаем профессиональное офисное пространство площадью 79,4 кв. м в историческом бизнес-центре "Тентельхофф" по адресу: ул. Швецова, 41. Идеальные условия для нотариальной деятельности: *Просторное помещение с удобной планировкой. *Отдельная зона ожидания для клиентов. *Высокоскоростной интернет для работы с электронными сервисами. *Надежная телефонная связь. *Современная система пожарной безопасности. Безопасность и комфорт: *Круглосуточное видеонаблюдение. *Электронный контроль доступа. *Профессиональная охрана. *Охраняемая парковка для клиентов. Удобное расположение: *5 минут до станций метро "Нарвская" и "Балтийская". *Развитая инфраструктура района. *Наличие кафе и столовой для сотрудников. *Удобная транспортная доступность. Помещение полностью готово к работе и соответствует всем требованиям для размещения нотариальной конторы. За подробной информацией и для организации просмотра обращайтесь по телефону.
Запись на просмотр
Пользовательским соглашением
Мы свяжемся с вами
в рабочее время
пн-пт с 09:00 до 18:00







