
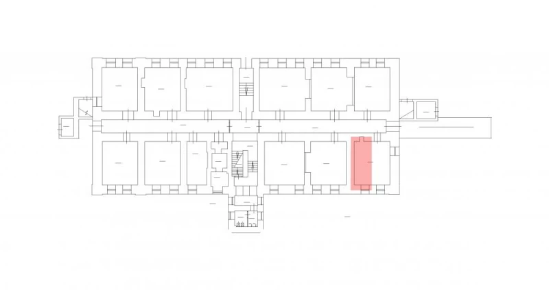
Комс,1-3-зАЩ-01 21.7 кв.м Офис 836
21.7 м²
площадь836 ₽
за м²18 141,2 ₽
за месяц











































Характеристики
| Район: | Калининский |
| Метро: | Площадь Ленина |
| Технопарк | "Арсенал", Комсомола 1-3 |
| Этаж: | 1 |
Безопасность
| Охрана: | круглосуточная охрана |
| Контроль доступа: | в наличии |
Коммуникации
| Телефон: | есть |
| Интернет: | Оптоволокно |
В арендную плату входит
Профессиональное управление
НДС
Оплачивается отдельно
Водоснабжение
Электроснабжение
Отопление
Описание
Собственник предлагает в аренду офисное помещение 21,7 кв. м. Кабинетная планировка. Прекрасный вариант кабинета для адвоката. Выполнен качественный ремонт как в самом помещении, так и в офисном здании - можно проводить встречи с клиентами. Не переживайте о безопасности - по всей территории ведётся круглосуточная охрана и видеонаблюдение. В офисном помещении присутствует полное инженерное оснащение: освещение, отопление, пожарная сигнализация. Дополнительно по запросу подключаются интернет и телефония. Действует контрольно-пропускная система. Проход на территорию осуществляется по электронным пропускам. На территории есть столовая и кафе. Арендаторам доступна охраняемая парковка. Вам и вашим клиентам будет удобно добираться на любом виде транспорта. Рядом пролегают Арсенальная набережная и Лесной проспект. В пешей доступности находится станция метро "Площадь Ленина".
Запись на просмотр
Пользовательским соглашением
Мы свяжемся с вами
в рабочее время
пн-пт с 09:00 до 18:00








