
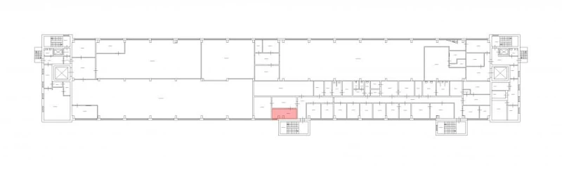
Комс,1-3-зГ-03, 02 14.8 кв.м Офис 899
14.8 м²
площадь899 ₽
за м²13 305,2 ₽
за месяц







Характеристики
| Район: | Калининский |
| Метро: | Площадь Ленина |
| Технопарк | "Арсенал", Комсомола 1-3 |
| Этаж: | 2 |
Безопасность
| Охрана: | круглосуточная охрана |
| Контроль доступа: | в наличии |
Коммуникации
| Телефон: | есть |
| Интернет: | Оптоволокно |
В арендную плату входит
Профессиональное управление
НДС
Оплачивается отдельно
Водоснабжение
Электроснабжение
Отопление
Описание
Предлагается в аренду офис в Калининском районе города. В 10-ти минутах - станция метро "Площадь Ленина". Площадь помещения - 14.8 кв. м. Оснащение: выделенная электроэнергия, освещение, отопление. Инфраструктура: парковка, столовая. Круглосуточная охрана. Более подробную информацию можете уточнить у менеджеров колл-центра.
Запись на просмотр
Пользовательским соглашением
Мы свяжемся с вами
в рабочее время
пн-пт с 09:00 до 18:00







