
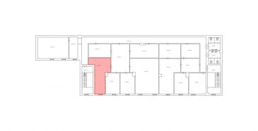
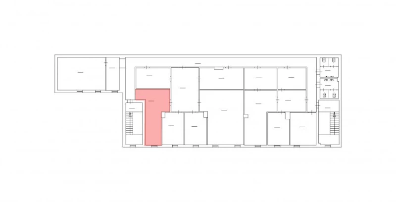
Заозерная-зЛ-02П 27.3 кв.м Офис 899
27.3 м²
площадь899 ₽
за м²24 542,7 ₽
за месяц








Характеристики
| Район: | Московский |
| Метро: | Технологический институт |
| Технопарк | "Заозерная", технопарк |
| Этаж: | 2 |
Безопасность
| Охрана: | круглосуточная охрана |
| Контроль доступа: | в наличии |
Коммуникации
| Телефон: | есть |
| Интернет: | Оптоволокно |
В арендную плату входит
Профессиональное управление
НДС
Оплачивается отдельно
Водоснабжение
Электроснабжение
Отопление
Описание
В аренду предлагается помещение площадью 27,3 кв. м под ОФИС ПРОДАЖ. Московский район города, Заозёрная ул., дом 8. 2-й этаж. Планировка: кабинетная. Проведены все необходимые инженерные коммуникации. Действует система СКУД. Охрана 24 часа.
Запись на просмотр
Пользовательским соглашением
Мы свяжемся с вами
в рабочее время
пн-пт с 09:00 до 18:00








