
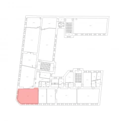
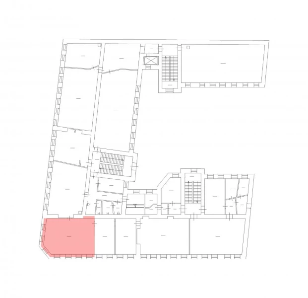
Дегт-зВ-02 83.7 кв.м Офис 849
83.7 м²
площадь849 ₽
за м²71 061,3 ₽
за месяц








Характеристики
| Район: | Центральный |
| Метро: | Площадь Восстания |
| Бизнес-центр | "Рассвет" бизнес-центр |
| Этаж: | 2 |
Безопасность
| Охрана: | круглосуточная охрана |
| Контроль доступа: | в наличии |
Коммуникации
| Телефон: | есть |
| Интернет: | Оптоволокно |
В арендную плату входит
Профессиональное управление
НДС
Оплачивается отдельно
Водоснабжение
Электроснабжение
Отопление
Описание
Сдаётся в аренду помещение под творческую мастерскую на Дегтярной ул., д. 5-7. Помещение угловое, 7 больших окон. 2-й этаж здания. Выполнен косметический ремонт. Открытая планировка. Оснащение: выделенная электроэнергия, освещение, отопление. Проход на территорию осуществляется по электронным картам доступа. Ближайшая станция метро - "Площадь Восстания".
Запись на просмотр
Пользовательским соглашением
Мы свяжемся с вами
в рабочее время
пн-пт с 09:00 до 18:00







