
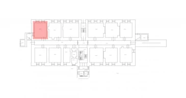
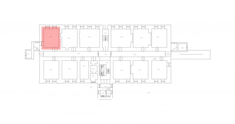
Комс,1-3-зАЩ-01 45.1 кв.м Офис 1253
45.1 м²
площадь1253 ₽
за м²56 510,3 ₽
за месяц









Характеристики
| Район: | Калининский |
| Метро: | Площадь Ленина |
| Технопарк | "Арсенал", Комсомола 1-3 |
| Этаж: | 1 |
Безопасность
| Охрана: | круглосуточная охрана |
| Контроль доступа: | в наличии |
Коммуникации
| Телефон: | есть |
| Интернет: | Оптоволокно |
В арендную плату входит
Профессиональное управление
НДС
Оплачивается отдельно
Водоснабжение
Электроснабжение
Отопление
Описание
Сдаётся в аренду небольшой кабинет площадью 45.1 кв. м у станции метро "Площадь Ленина". Подойдёт под размещение офиса юриста. Выполнена качественная отделка. Проведены электричество, отопление и освещение, установлена пожарная сигнализация. Дополнительно предоставляются доступ к интернету и телефонии, система СКУД. Услуги: магазины, парковка, столовая. Ведётся круглосуточная охрана.
Запись на просмотр
Пользовательским соглашением
Мы свяжемся с вами
в рабочее время
пн-пт с 09:00 до 18:00








