
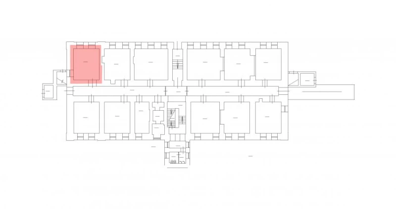
Комс,1-3-зАЩ-01 45 кв.м Офис 1249
45 м²
площадь1249 ₽
за м²56 205 ₽
за месяц












Характеристики
| Район: | Калининский |
| Метро: | Площадь Ленина |
| Технопарк | "Арсенал", Комсомола 1-3 |
| Этаж: | 1 |
Безопасность
| Охрана: | круглосуточная охрана |
| Контроль доступа: | в наличии |
Коммуникации
| Телефон: | есть |
| Интернет: | Оптоволокно |
В арендную плату входит
Профессиональное управление
НДС
Оплачивается отдельно
Водоснабжение
Электроснабжение
Отопление
Описание
Аренда помещения площадью 45 кв. м под офис рекламного отдела на ул. Комсомола, д.1-3. Качественная отделка: подвесной потолок, линолеум, светлые окрашенные обои. Первый этаж здания на территории технопарка "Арсенал". Кабинетная планировка. Оснащение: освещение, отопление, пожарная сигнализация. Для удобства арендаторов и посетителей на территории есть столовая и парковка. Проход на территорию осуществляется по электронным картам доступа. В пешей доступности расположена станция метро "Площадь Ленина".
Запись на просмотр
Пользовательским соглашением
Мы свяжемся с вами
в рабочее время
пн-пт с 09:00 до 18:00








