
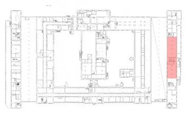
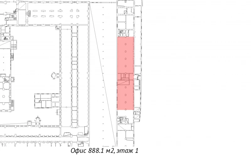
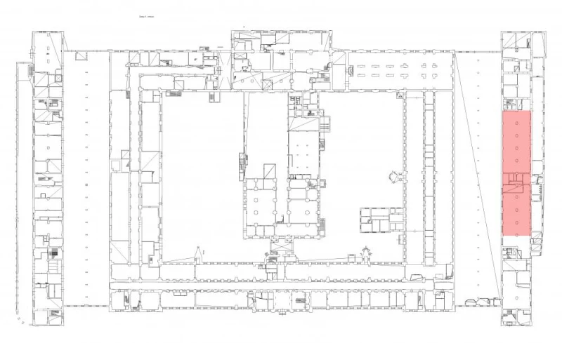
Комс,2-зА-01 888.1 кв.м Офис 649
888.1 м²
площадь649 ₽
за м²576 376,9 ₽
за месяц












Характеристики
| Район: | Калининский |
| Метро: | Площадь Ленина |
| Технопарк | "Арсенал", Комсомола 2 |
| Этаж: | 1 |
Безопасность
| Охрана: | круглосуточная охрана |
| Контроль доступа: | в наличии |
Коммуникации
| Телефон: | есть |
| Интернет: | Оптоволокно |
В арендную плату входит
Профессиональное управление
НДС
Оплачивается отдельно
Водоснабжение
Электроснабжение
Отопление
Описание
Сдаётся в аренду без посредников учебное пространство для проведения мастер-классов. Помещение площадью 888,1 кв. м по адресу: ул. Комсомола, д. 2. Первый этаж. Высота потолков 5,5 м. Пространство разделено на несколько помещений, которые можно одновременно использовать под разные мастер-классы. Есть свой санузел. До пространства Арсенал удобно добираться как пешком, так и на автомобиле. В пешей доступности находится станция метро "Площадь Ленина", а также Финляндский вокзал. Близко расположены остановки наземного общественного транспорта. Рядом пролегают Арсенальная и Свердловская набережные, Литейный мост. Оснащение: освещение, отопление, выделенная электроэнергия, ХВС, водоотведение, пожарная сигнализация. Доступны для подключения высокоскоростной интернет и цифровая телефония. На территории есть кофейни и рестораны. Близко расположены общественные зоны отдыха. Через дорогу открывается красивый вид на Неву.
Запись на просмотр
Пользовательским соглашением
Мы свяжемся с вами
в рабочее время
пн-пт с 09:00 до 18:00








