
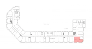
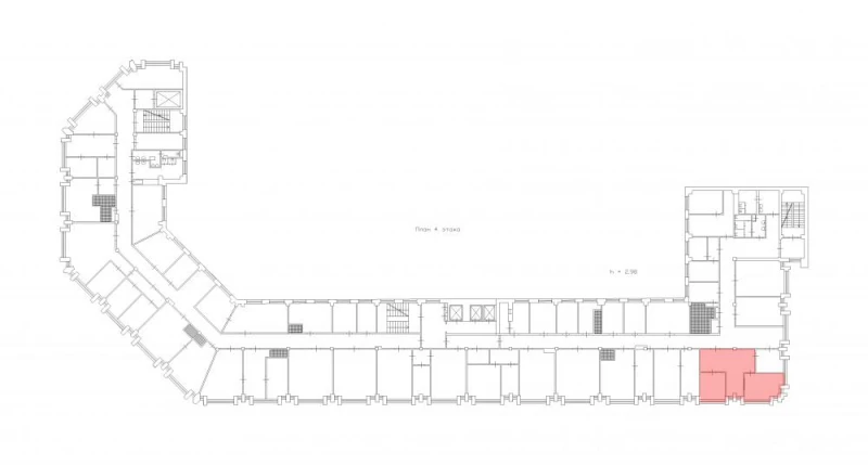
Конст2-зА-04 64.3 кв.м Офис 898
64.3 м²
площадь898 ₽
за м²57 741,4 ₽
за месяц










Характеристики
| Район: | Московский |
| Метро: | Московская |
| Бизнес-центр | "К-2" бизнес-центр |
| Этаж: | 4 |
Безопасность
| Охрана: | круглосуточная охрана |
| Контроль доступа: | в наличии |
Коммуникации
| Телефон: | есть |
| Интернет: | Оптоволокно |
В арендную плату входит
Профессиональное управление
НДС
Оплачивается отдельно
Водоснабжение
Электроснабжение
Отопление
Описание
Аренда помещения под IT отдел, общая площадь 64,3 кв. м. Адрес объекта: пл. Конституции, дом 2. этаж 4 (есть 3 пассажирских лифта). Ближайшие станции метро: "Московская", "Ленинский пр." В помещении: пол - линолеум, стены - обои под покраску. Заведены высокоскоростной интернет и цифровая телефония. Установлены датчики пожарной безопасности. Объект под круглосуточной охраной, проход по пропускам. Для удобства арендаторов на территории есть кафе, столовая, магазин.
Запись на просмотр
Пользовательским соглашением
Мы свяжемся с вами
в рабочее время
пн-пт с 09:00 до 18:00







