
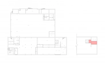
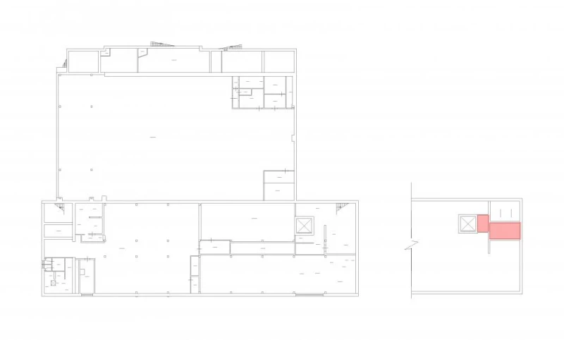
Швец38-зА-антресоль 1 этажа 27.9 кв.м Офис 799
27.9 м²
площадь799 ₽
за м²22 292,1 ₽
за месяц








Характеристики
| Район: | Кировский |
| Метро: | Нарвская |
| Технопарк | "Нарвский" технопарк, Швецова, 38 |
| Этаж: | Антресоль 1 этажа |
Безопасность
| Охрана: | круглосуточная охрана |
| Контроль доступа: | в наличии |
Коммуникации
| Телефон: | есть |
| Интернет: | Оптоволокно |
В арендную плату входит
Профессиональное управление
НДС
Оплачивается отдельно
Водоснабжение
Электроснабжение
Отопление
Описание
Аренда офисного блока в технопарке "Нарвский". Предлагается в аренду офисный блок площадью 27,9 кв. м на территории современного технопарка в Кировском районе Санкт-Петербурга. Планировка: кабинетная. Отделка: - Окрашенные стены; - подвесной потолок; - линолеум на полу. Инженерные системы: - Централизованное отопление; - водоснабжение; - пожарная сигнализация; - освещение. Связь и интернет: - Высокоскоростной интернет; - цифровая телефония. Безопасность: - Круглосуточная охрана; - система контроля доступа (СКУД); - электронные карты доступа. Инфраструктура: - Парковка для сотрудников и клиентов; - столовая на территории; - профессиональное управление зданием. Данный офисный блок идеально подходит для размещения небольшого коллектива или стартапа, обеспечивая комфортное рабочее пространство с развитой инфраструктурой и удобным расположением.
Запись на просмотр
Пользовательским соглашением
Мы свяжемся с вами
в рабочее время
пн-пт с 09:00 до 18:00






