
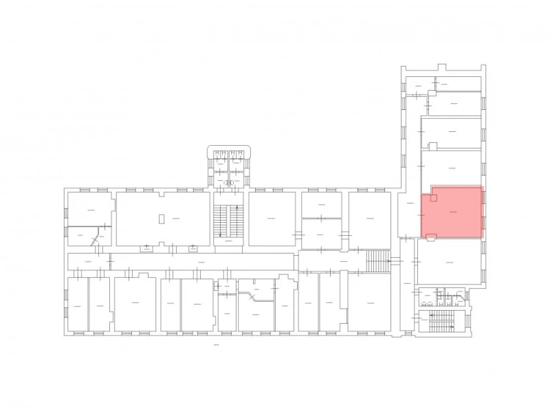
Комс,1-3-зАУ-03 этаж, 02 этаж 48.8 кв.м Офис 925
48.8 м²
площадь925 ₽
за м²45 140 ₽
за месяц









Характеристики
| Район: | Калининский |
| Метро: | Площадь Ленина |
| Технопарк | "Арсенал", Комсомола 1-3 |
| Этаж: | 3 |
Безопасность
| Охрана: | круглосуточная охрана |
| Контроль доступа: | в наличии |
Коммуникации
| Телефон: | есть |
| Интернет: | Оптоволокно |
В арендную плату входит
Профессиональное управление
НДС
Оплачивается отдельно
Водоснабжение
Электроснабжение
Отопление
Описание
Современный офис для службы поддержки клиентов у метро "Площадь Ленина". Площадь помещения: 48,8 кв. м — идеальное пространство для размещения команды специалистов службы поддержки. Расположение: 3 этаж здания по адресу: ул. Комсомола, дом 1-3. Преимущества помещения: Качественный ремонт- светлые стены, современное напольное покрытие — идеальные условия для комфортной работы операторов. Удобная инфраструктура- на территории технопарка "Арсенал" работает столовая, есть парковка для сотрудников. Безопасность- круглосуточная охрана, система контроля доступа по электронным картам. Техническое оснащение: Коммуникации- высокоскоростной интернет, цифровая телефония — всё необходимое для эффективной работы службы поддержки. Планировка- кабинетная система позволяет организовать рабочие места с учётом специфики работы операторов. Дополнительные преимущества: Удобное расположение- лёгкий доступ как для сотрудников, так и для возможных визитов клиентов. Комфортная среда- продуманная инфраструктура технопарка создаёт оптимальные условия для работы команды поддержки. Помещение полностью готово к размещению службы поддержки и не требует дополнительных вложений в ремонт или оснащение.
Запись на просмотр
Пользовательским соглашением
Мы свяжемся с вами
в рабочее время
пн-пт с 09:00 до 18:00








