
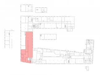
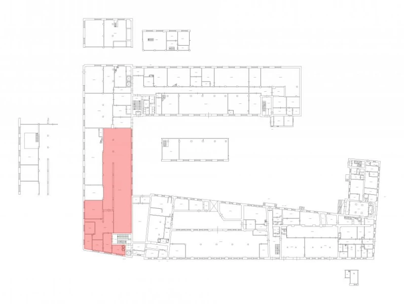
Звенигородская-зК-01 799.1 кв.м Офис 959
799.1 м²
площадь959 ₽
за м²766 336,9 ₽
за месяц












Характеристики
| Район: | Адмиралтейский |
| Метро: | Звенигородская |
| Бизнес-центр | "Звенигородский" бизнес-центр |
| Этаж: | 1 |
Безопасность
| Охрана: | круглосуточная охрана |
| Контроль доступа: | в наличии |
Коммуникации
| Телефон: | есть |
| Интернет: | Оптоволокно |
В арендную плату входит
Профессиональное управление
НДС
Оплачивается отдельно
Водоснабжение
Электроснабжение
Отопление
Описание
Престижный офисный центр на Звенигородской. Расположение: 1 этаж, ул. Звенигородская, дом 9–11. Особенности помещения: *Множество больших окон. *Высокие потолки. *Отличная естественная освещенность. Потенциал: *Возможность организации open space. *Создание отдельных кабинетов. *Организация переговорных зон. Технические характеристики: *Централизованное водоснабжение *Канализация. *Электроснабжение. Безопасность: *Системы контроля доступа. *Видеонаблюдение. *Пожарная сигнализация. Пространство можно организовать как: *Open space зона. *Отдельные кабинеты. *Переговорные комнаты. *Зоны отдыха. Дополнительные преимущества: *Возможность создания современного интерьера. *Большие окна для естественного освещения. *Высокие потолки для эффектных дизайнерских решений. Целевая аудитория: *Крупные компании. *Стартапы. *Корпоративные клиенты. Возможности: *Организация комфортного рабочего пространства. *Создание современной офисной среды. *Возможность проведения деловых встреч. *Размещение дополнительных сервисов. Создайте современный офисный центр в одном из самых престижных мест города! Просторное помещение с отличной инсоляцией и высокими потолками станет идеальной основой для развития вашего бизнеса.
Запись на просмотр
Пользовательским соглашением
Мы свяжемся с вами
в рабочее время
пн-пт с 09:00 до 18:00








