
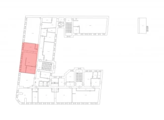
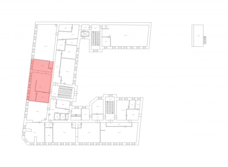
Дегт-зВ-03 126.3 кв.м Офис 1240
126.3 м²
площадь1240 ₽
за м²156 612 ₽
за месяц















Характеристики
| Район: | Центральный |
| Метро: | Площадь Восстания |
| Бизнес-центр | "Рассвет" бизнес-центр |
| Этаж: | 3 |
Безопасность
| Охрана: | круглосуточная охрана |
| Контроль доступа: | в наличии |
Коммуникации
| Телефон: | есть |
| Интернет: | Оптоволокно |
В арендную плату входит
Профессиональное управление
НДС
Оплачивается отдельно
Водоснабжение
Электроснабжение
Отопление
Описание
Предлагается в аренду от собственника светлый офис 126,3 кв. м Третий этаж бизнес-центра "Рассвет". Кабинетная планировка. В помещении присутствует естественное и искусственное освещение. Подойдёт для проведения мастер-классов. Стандартная отделка помещения: обои, ламинат на полу. Установлена пожарная сигнализация, есть освещение и отопление. Для удобства арендаторов доступно подключение высокоскоростного интернета, цифровой телефонии. Производится еженедельный клининг помещения. Бизнес-центр находится под круглосуточной охраной. Доступ осуществляется по пропускам. БЦ "Рассвет" расположен в центре города недалеко от пересечения Невского и Лиговского проспектов. Заезд на территорию осуществляется с 3-ей Советской улицы. В шаговой доступности от бизнес-центра есть кафе, магазины, общественные зоны отдыха. Рассмотрим вашу деятельность для аренды помещения.
Запись на просмотр
Пользовательским соглашением
Мы свяжемся с вами
в рабочее время
пн-пт с 09:00 до 18:00








