
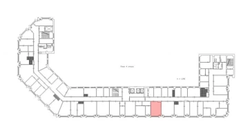
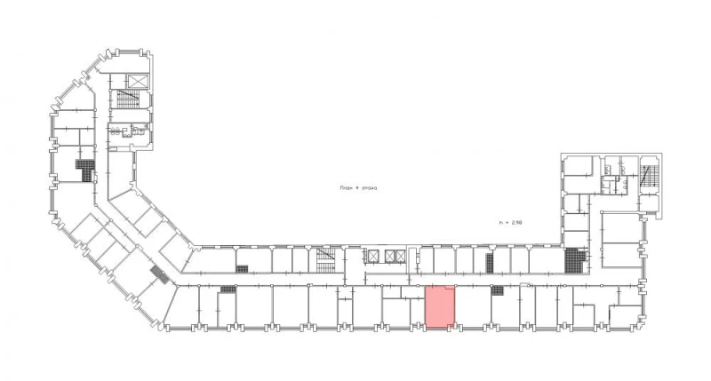
Конст2-зА-04 32.1 кв.м Офис 888
32.1 м²
площадь888 ₽
за м²28 504,8 ₽
за месяц


















Характеристики
| Район: | Московский |
| Метро: | Московская |
| Бизнес-центр | "К-2" бизнес-центр |
| Этаж: | 4 |
Безопасность
| Охрана: | круглосуточная охрана |
| Контроль доступа: | в наличии |
Коммуникации
| Телефон: | есть |
| Интернет: | Оптоволокно |
В арендную плату входит
Профессиональное управление
НДС
Оплачивается отдельно
Водоснабжение
Электроснабжение
Отопление
Описание
Аренда помещения площадью 32,1 кв. м под консалтинговые услуги. 4-й этаж, коридорно-кабинетная планировка. Площадь состоит из нескольких помещений: можно выделить кабинет начальника, а также гардеробную. Потолки 2,98 м делают возможным установку высоких шкафов для хранения документов. В помещениях уже выполнена отделка – не придётся тратиться на ремонт. Надёжное инженерное оснащение помещения позволит сосредоточится на действительно важных задачах. К услугам арендаторов: высокоскоростной интернет, цифровая телефония, пожарная сигнализация. Действует контрольно-пропускная система, с помощью которой можно вести учёт рабочего времени сотрудников. Проход осуществляется по электронным картам доступа. Для вашей безопасности ведётся круглосуточная охрана и видеонаблюдение. В здании бизнес-центра есть столовая и супермаркет "Лента". На закрытой территории есть парковка. Расположение: площадь Конституции, д. 2, 4 этаж, бизнес-центр "К-2". Близко к территории бизнес-центра пролегают ЗСД, Ленинский проспект, Московский проспект и Пулковское шоссе. В 15 минутах ходьбы находится станция метро "Московская". Наша компания является собственником помещения – вам не придётся платить комиссию агентству!
Запись на просмотр
Пользовательским соглашением
Мы свяжемся с вами
в рабочее время
пн-пт с 09:00 до 18:00







