
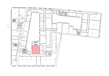
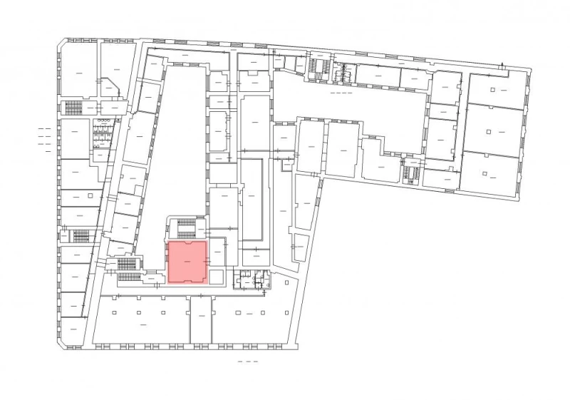
Мира-зА-02 76.6 кв.м Офис 1040
76.6 м²
площадь1040 ₽
за м²79 664 ₽
за месяц











Характеристики
| Район: | Петроградский |
| Метро: | Горьковская |
| Бизнес-центр | "Троицкий" бизнес-центр |
| Этаж: | 2 |
Безопасность
| Охрана: | круглосуточная охрана |
| Контроль доступа: | в наличии |
Коммуникации
| Телефон: | есть |
| Интернет: | Оптоволокно |
В арендную плату входит
Профессиональное управление
НДС
Оплачивается отдельно
Водоснабжение
Электроснабжение
Отопление
Описание
Собственник предлагает в аренду помещение под офис бухгалтерии. Адрес: Петроградский район, улица Мира, дом 3, БЦ "Троицкий". Офис оборудован пожарной сигнализацией, освещением, отоплением. Услуги: интернет и цифровая телефония. Ст. м. " Горьковская" в 5-ти минутах пешком. В стоимость входит НДС.
Запись на просмотр
Пользовательским соглашением
Мы свяжемся с вами
в рабочее время
пн-пт с 09:00 до 18:00







