
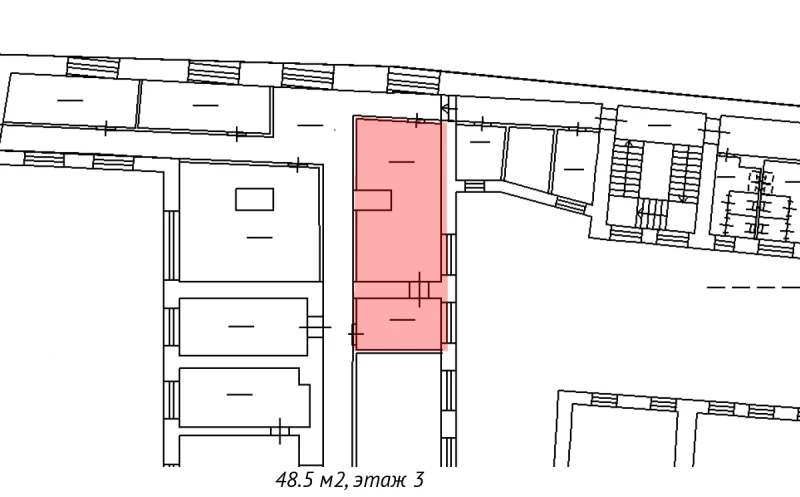
Мира-зА-03 48.5 кв.м Офис 1397
48.5 м²
площадь1397 ₽
за м²67 754,5 ₽
за месяц










Характеристики
| Район: | Петроградский |
| Метро: | Горьковская |
| Бизнес-центр | "Троицкий" бизнес-центр |
| Этаж: | 3 |
Безопасность
| Охрана: | круглосуточная охрана |
| Контроль доступа: | в наличии |
Коммуникации
| Телефон: | есть |
| Интернет: | Оптоволокно |
В арендную плату входит
Профессиональное управление
НДС
Оплачивается отдельно
Водоснабжение
Электроснабжение
Отопление
Описание
Рядом с метро "Горьковская" сдается в аренду офис для строительной компании. Адрес: ул. Мира д. 3, БЦ Троицкий. Услуги: высокоскоростной интернет, цифровая телефония. Станция метро - "Горьковская" - в 10 минутах. В стоимость входит НДС.
Запись на просмотр
Пользовательским соглашением
Мы свяжемся с вами
в рабочее время
пн-пт с 09:00 до 18:00







