
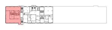
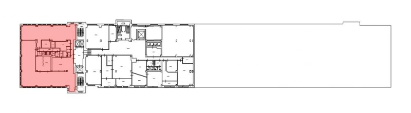
Урал-зБ-02 этаж, антресоль 1 этажа 541.9 кв.м Офис 1750
541.9 м²
площадь1750 ₽
за м²948 325 ₽
за месяц














Характеристики
| Район: | Василеостровский |
| Метро: | Василеостровская |
| Бизнес-центр | "Смоленский" бизнес-центр |
| Этаж: | 2 |
Безопасность
| Охрана: | круглосуточная охрана |
| Контроль доступа: | в наличии |
Коммуникации
| Телефон: | есть |
| Интернет: | Оптоволокно |
В арендную плату входит
Профессиональное управление
НДС
Оплачивается отдельно
Водоснабжение
Электроснабжение
Отопление
Описание
в Василеостровском районе города сдаётся в аренду офисный блок площадью 541.9 кв. м для офиса строительной компании. В деловом комплексе есть парковка, столовая Планировка смешанная: помещение формата "open space" и небольшие кабинеты. Качественная отделка: окрашенные обои, потолок подвесной, напольное покрытие - линолеум. Услуги: высокоскоростной интернет, цифровая телефония. Объект находится под круглосуточной охраной, на территории действует пропускная система. В 15 минутах ходьбы находится станция метро "Василеостровская".
Запись на просмотр
Пользовательским соглашением
Мы свяжемся с вами
в рабочее время
пн-пт с 09:00 до 18:00






