
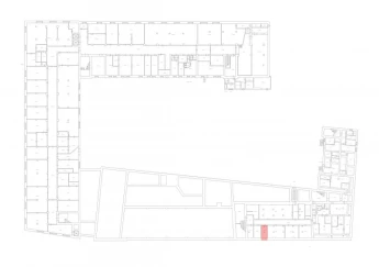
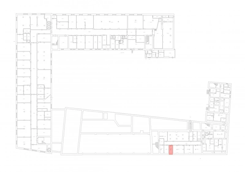
Звенигородская-зК-00 13.3 кв.м Производство 929
13.3 м²
площадь929 ₽
за м²12 355,7 ₽
за месяц













Характеристики
| Район: | Адмиралтейский |
| Метро: | Звенигородская |
| Бизнес-центр | "Звенигородский" бизнес-центр |
| Этаж: | цокольный |
Безопасность
| Охрана: | круглосуточная охрана |
| Контроль доступа: | в наличии |
Коммуникации
| Телефон: | есть |
| Интернет: | Оптоволокно |
В арендную плату входит
Профессиональное управление
НДС
Оплачивается отдельно
Водоснабжение
Электроснабжение
Отопление
Описание
Аренда помещения под производство в Адмиралтейском районе. Площадь: 13,3 кв. м. Цокольный этаж здания на Звенигородской улице, дом 9-11. В производственном помещении можно организовать мастерскую 3D-печати и прототипирования. Благодаря отсутствию окон в помещении поддерживается стабильная температура, изделия и оборудование защищены от попадания прямых солнечных лучей. В помещении ровный бетонный пол и потолки 2,4 м. Оснащение: выделенная электроэнергия, отопление и освещение, пожарная сигнализация. Арендаторам доступно подключение интернета и телефонии. Круглосуточной охраной обеспечивается максимальная безопасность на территории. Проход осуществляется по пропускам. Станции метро "Звенигородская", "Пушкинская" и "Лиговский проспект" находятся в нескольких минутах ходьбы. Набережная Обводного канала, Лиговский и Московский проспекты, пролегающие рядом, создают максимальную транспортную доступность. Благодаря расположению в центре города, рядом всегда есть кафе и магазины. На территории находится охраняемая парковка.
Запись на просмотр
Пользовательским соглашением
Мы свяжемся с вами
в рабочее время
пн-пт с 09:00 до 18:00






