
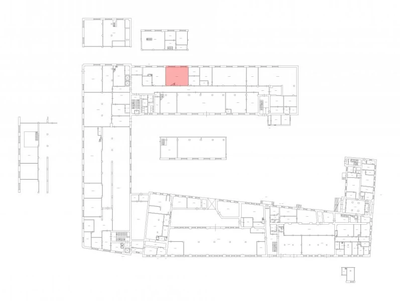
Звенигородская-зК-01 84.3 кв.м Производство 1249
84.3 м²
площадь1249 ₽
за м²105 290,7 ₽
за месяц






















Характеристики
| Район: | Адмиралтейский |
| Метро: | Звенигородская |
| Бизнес-центр | "Звенигородский" бизнес-центр |
| Этаж: | 1 |
Безопасность
| Охрана: | круглосуточная охрана |
| Контроль доступа: | в наличии |
Коммуникации
| Телефон: | есть |
| Интернет: | Оптоволокно |
В арендную плату входит
Профессиональное управление
НДС
Оплачивается отдельно
Водоснабжение
Электроснабжение
Отопление
Описание
Сдается в аренду производственное помещение. Месторасположение: Звенигородская ул., д. 9-11. Помещение находится на 1-ом этаже здания (один лестничный пролет вверх). Загрузка возможна через продвал на лифте (г/п 0,5 тонн). Характеристика помещения: высота потолка 2,20 м. Пол - бетонный. Оснащение: электроснабжение (выделенная электрическая мощность), освещение, отопление. К услугам арендаторов: цифровая телефония, высокоскоростной интернет. Ведется круглосуточная охрана, действует система контроля и управления доступом. На территории имеется кафе. В 5-ти минутах - станция метро «Звенигородская".
Запись на просмотр
Пользовательским соглашением
Мы свяжемся с вами
в рабочее время
пн-пт с 09:00 до 18:00








