
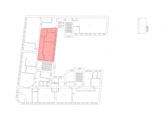
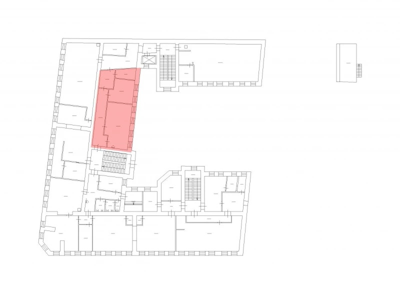
Дегт-зВ-03 140.9 кв.м Производство 1057
140.9 м²
площадь1057 ₽
за м²148 931,3 ₽
за месяц









Характеристики
| Район: | Центральный |
| Метро: | Площадь Восстания |
| Бизнес-центр | "Рассвет" бизнес-центр |
| Этаж: | 3 |
Безопасность
| Охрана: | круглосуточная охрана |
| Контроль доступа: | в наличии |
Коммуникации
| Телефон: | есть |
| Интернет: | Оптоволокно |
В арендную плату входит
Профессиональное управление
НДС
Оплачивается отдельно
Водоснабжение
Электроснабжение
Отопление
Описание
В БЦ "Рассвет", в самом центре города сдается в аренду помещение площадью 140,9 кв. м. Идеально подойдет под размещение швейного производства. Третий этаж здания, кабинетная планировка. Есть лифт (500 кг, 1,5 х 1,5 м). Стены - окрашенные обои, пол - линолеум. Станция метро "Площадь Восстания" - в десяти мин. Услуги: круглосуточный доступ на объект, охраняемая территория, интернет, телефония.
Запись на просмотр
Пользовательским соглашением
Мы свяжемся с вами
в рабочее время
пн-пт с 09:00 до 18:00







