
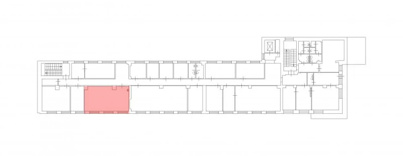
Урал19-зА(корпус8)-03 56.3 кв.м Производство 569
56.3 м²
площадь569 ₽
за м²32 034,7 ₽
за месяц














Характеристики
| Район: | Василеостровский |
| Метро: | Василеостровская |
| Бизнес-центр | "Урал Плаза" бизнес-центр |
| Этаж: | 3 |
Безопасность
| Охрана: | круглосуточная охрана |
| Контроль доступа: | в наличии |
Коммуникации
| Телефон: | есть |
| Интернет: | Оптоволокно |
В арендную плату входит
Профессиональное управление
НДС
Оплачивается отдельно
Водоснабжение
Электроснабжение
Отопление
Описание
Предлагается в аренду современное производственное помещение в престижном Василеостровском районе Санкт-Петербурга, идеально подходящее для размещения производства. Расположение: *Адрес: ул. Уральская, дом 19. *Район: Василеостровский. *Транспортная доступность: 15 минут пешком до станции метро "Василеостровская". Характеристики помещения: *Площадь: 56.3 кв. м. *Этаж: 3. *Планировка: кабинетная, адаптируемая под производственные нужды. *Высота потолков: оптимальная для размещения производственного оборудования. Инженерные системы: *Централизованное отопление. *Выделенная электрическая мощность. *Качественное освещение. *Современная пожарная сигнализация. Инфраструктура: *Пассажирский лифт грузоподъемностью 630 кг. *Система электронных пропусков. *Охраняемая территория. *Возможность организации погрузочно-разгрузочных работ. Преимущества объекта: *Удобное расположение в развитом промышленном районе. *Полная техническая оснащенность для производственной деятельности. *Надежная система безопасности с контролем доступа. *Гибкая планировка позволяет организовать производственный процесс. *Удобная транспортная доступность с возможностью организации доставки. Данное производственное помещение представляет собой оптимальное решение для размещения производства, сочетая удобное расположение, современную инфраструктуру и полную техническую готовность к эксплуатации. Помещение полностью соответствует требованиям для организации производственного процесса.
Запись на просмотр
Пользовательским соглашением
Мы свяжемся с вами
в рабочее время
пн-пт с 09:00 до 18:00







