
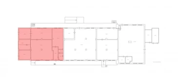
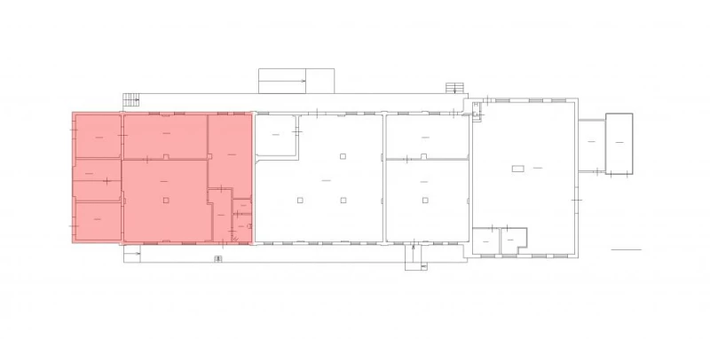
Швец41-зЖ-01 320.4 кв.м Производство 990
320.4 м²
площадь990 ₽
за м²317 196 ₽
за месяц







Характеристики
| Район: | Кировский |
| Метро: | Нарвская |
| Технопарк | "Нарвский" технопарк, Швецова 41 |
| Этаж: | 1 |
Безопасность
| Охрана: | круглосуточная охрана |
| Контроль доступа: | в наличии |
Коммуникации
| Телефон: | есть |
| Интернет: | Оптоволокно |
В арендную плату входит
Профессиональное управление
НДС
Оплачивается отдельно
Водоснабжение
Электроснабжение
Отопление
Описание
Сдаётся в аренду производственный блок 320.4 кв. м на ул. Швецова, д.41. В непосредственной близости расположены станции метро "Нарвская" и "Балтийская". Рядом пролегают Митрофаньевское шоссе, проспект Стачек и ул. Маршала Говорова. В помещениях потолки высотой 2,60-6,45 м, окрашенные стены, линолеум на полу. Проведены инженерные коммуникации (мощность 150 кВт, отопление, освещение), есть собственный санузел с ХВС и водоотведением. Оборудованы входы и ворота. На территории есть столовая, парковка. Проход на территорию осуществляется по электронным картам доступа. Охрана 24 часа. Возможен круглосуточный режим работы.
Запись на просмотр
Пользовательским соглашением
Мы свяжемся с вами
в рабочее время
пн-пт с 09:00 до 18:00








