
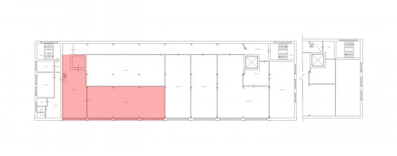
Швец38-зА-03 227 кв.м Производство 782
227 м²
площадь782 ₽
за м²177 514 ₽
за месяц








Характеристики
| Район: | Кировский |
| Метро: | Нарвская |
| Технопарк | "Нарвский" технопарк, Швецова, 38 |
| Этаж: | 2 |
Безопасность
| Охрана: | круглосуточная охрана |
| Контроль доступа: | в наличии |
Коммуникации
| Телефон: | есть |
| Интернет: | Оптоволокно |
В арендную плату входит
Профессиональное управление
НДС
Оплачивается отдельно
Водоснабжение
Электроснабжение
Отопление
Описание
Сдаётся в аренду производственное помещение общей площадью 227 кв. м на ул. Швецова, д.38. Расположено на 2-м этаже здания. Есть грузовой лифт г/п 2 т. Высота потолка 2.45 м, бетонный пол. Нагрузка на пол 300 кг/кв. м. В основном зале помещения установлены большие окна, хорошее естественное освещение. Услуги: выделенная электрическая мощность, освещение, отопление. Действует система СКУД. Проход осуществляется по электронным картам доступа. Охрана 24 часа. Арендная ставка включает в себя НДС.
Запись на просмотр
Пользовательским соглашением
Мы свяжемся с вами
в рабочее время
пн-пт с 09:00 до 18:00







