
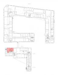
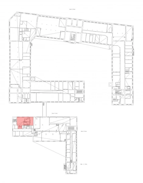
Комс,1-3-зАИ-02,03 119.4 кв.м Производство 756
119.4 м²
площадь756 ₽
за м²90 266,4 ₽
за месяц










Характеристики
| Район: | Калининский |
| Метро: | Площадь Ленина |
| Технопарк | "Арсенал", Комсомола 1-3 |
| Этаж: | 2 |
Безопасность
| Охрана: | круглосуточная охрана |
| Контроль доступа: | в наличии |
Коммуникации
| Телефон: | есть |
| Интернет: | Оптоволокно |
В арендную плату входит
Профессиональное управление
НДС
Оплачивается отдельно
Водоснабжение
Электроснабжение
Отопление
Описание
Сдаётся в аренду блок площадью 119,4 кв. м под производство в Калининском районе города. Кабинетная планировка. Возможность организации разных зон. Оснащение: выделенная эл.мощность 25 кВт, пожарная сигнализация, отопление, освещение, ХВС, водоотведение, высокоскоростной интернет, цифровая телефония. Действует система СКУД. Проход осуществляется по электронным картам доступа. На территории есть столовая, парковка. Расположение: ул. Комсомола, д.1-3. Более подробную информацию можете узнать у менеджеров колл-центра.
Запись на просмотр
Пользовательским соглашением
Мы свяжемся с вами
в рабочее время
пн-пт с 09:00 до 18:00







