
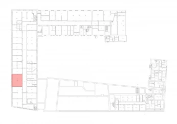
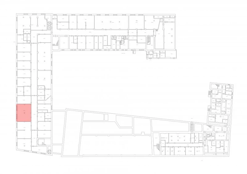
Звенигородская-зК-00 89.9 кв.м Производство 899
89.9 м²
площадь899 ₽
за м²80 820,1 ₽
за месяц




















Характеристики
| Район: | Адмиралтейский |
| Метро: | Звенигородская |
| Бизнес-центр | "Звенигородский" бизнес-центр |
| Этаж: | цокольный |
Безопасность
| Охрана: | круглосуточная охрана |
| Контроль доступа: | в наличии |
Коммуникации
| Телефон: | есть |
| Интернет: | Оптоволокно |
В арендную плату входит
Профессиональное управление
НДС
Оплачивается отдельно
Водоснабжение
Электроснабжение
Отопление
Описание
В аренду предлагается помещение под МАСТЕРСКУЮ в пешей доступности от станции метро "Звенигородская". Безопасность на объекте обеспечивает круглосуточная охрана. Цокольный этаж здания на Звенигородской ул., д.9-11. Высота потолка 2,73 м, до балки 2,18 м. Дверь металлическая 1,98*1,48 м. ОСНАЩЕНИЕ: отопление, освещение, выделенная электрическая мощность. Есть грузовой лифт на этаже! Действует СИСТЕМА СКУД. Проход осуществляется по электронным картам доступа. ИНФРАСТРУКТУРА: столовая, парковка.
Запись на просмотр
Пользовательским соглашением
Мы свяжемся с вами
в рабочее время
пн-пт с 09:00 до 18:00







