
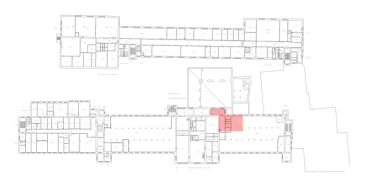
Пром5-зА-03 135.9 кв.м Производство 659
135.9 м²
площадь659 ₽
за м²89 558,1 ₽
за месяц












Характеристики
| Район: | Кировский |
| Метро: | Нарвская |
| Технопарк | "Промышленная 5" технопарк |
| Этаж: | 3 |
Безопасность
| Охрана: | круглосуточная охрана |
| Контроль доступа: | в наличии |
Коммуникации
| Телефон: | есть |
| Интернет: | Оптоволокно |
В арендную плату входит
Профессиональное управление
НДС
Оплачивается отдельно
Водоснабжение
Электроснабжение
Отопление
Описание
На территории технопарка "Промышленная" в аренду сдаётся помещение площадью 135.9 кв. м под мастерскую. В помещениях потолки высотой 3,5 м, беспылевое покрытие. Нагрузка на пол 500 кг. 3-й этаж здания. В здании есть грузовой лифт 2т (2,4х1,9х2,2м). Помещение оснащено выделенной электрической мощностью, освещением, отоплением. Высокий уровень безопасности на объекте обеспечивают круглосуточная охрана и система контроля и управления доступом. Ближайшая станция метро "Нарвская" расположена в 5 минутах.
Запись на просмотр
Пользовательским соглашением
Мы свяжемся с вами
в рабочее время
пн-пт с 09:00 до 18:00






