
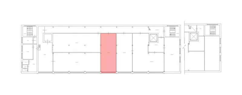
Швец38-зА-03 89.5 кв.м Производство 899
89.5 м²
площадь899 ₽
за м²80 460,5 ₽
за месяц








Характеристики
| Район: | Кировский |
| Метро: | Нарвская |
| Технопарк | "Нарвский" технопарк, Швецова, 38 |
| Этаж: | 3 |
Безопасность
| Охрана: | круглосуточная охрана |
| Контроль доступа: | в наличии |
Коммуникации
| Телефон: | есть |
| Интернет: | Оптоволокно |
В арендную плату входит
Профессиональное управление
НДС
Оплачивается отдельно
Водоснабжение
Электроснабжение
Отопление
Описание
В аренду предлагается помещение общей площадью 89.5 кв. м, которые подойдёт для небольшой СТОЛЯРНОЙ МАСТЕРСКОЙ. Проведены необходимые ИНЖЕНЕРНЫЕ КОММУНИКАЦИИ: выделенная электроэнергия, освещение, отопление. 2-й ЭТАЖ здания на ул. Швецова, д.38. На этаже есть грузовой лифт. На объекте ведётся круглосуточная ОХРАНА с видеонаблюдением и действует система контроля и управления доступом. Рядом - выезд на ЗСД, благодаря которому из района можно быстро выбраться, в шаговой доступности станция МЕТРО "Нарвская".
Запись на просмотр
Пользовательским соглашением
Мы свяжемся с вами
в рабочее время
пн-пт с 09:00 до 18:00






