
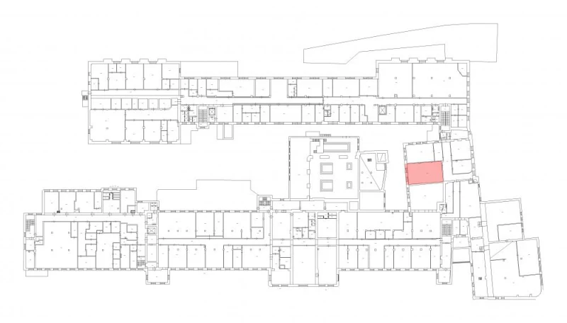
Пром5-зА-02 88 кв.м Производство 608
88 м²
площадь608 ₽
за м²53 504 ₽
за месяц











Характеристики
| Район: | Кировский |
| Метро: | Нарвская |
| Технопарк | "Промышленная 5" технопарк |
| Этаж: | 2 |
Безопасность
| Охрана: | круглосуточная охрана |
| Контроль доступа: | в наличии |
Коммуникации
| Телефон: | есть |
| Интернет: | Оптоволокно |
В арендную плату входит
Профессиональное управление
НДС
Оплачивается отдельно
Водоснабжение
Электроснабжение
Отопление
Описание
Аренда производственного помещения в Кировском районе города. В 5 минутах - станция метро "Нарвская". Адрес объекта: ул. Промышленная, дом 5. Помещение расположено на 2 этаже. Грузового лифта нет, 1 лестничный марш шириной 1,4 м, 16 ступеней. В помещение заведена мощность 15 кВт. 2 окна во двор. Пол - бетонный, стены - газобетон/кирпич. В помещение установлены датчики пожарной безопасности. Объект под круглосуточной охраной. Проходы/проезды на территорию по предварительно заказанному пропуску.
Запись на просмотр
Пользовательским соглашением
Мы свяжемся с вами
в рабочее время
пн-пт с 09:00 до 18:00






