
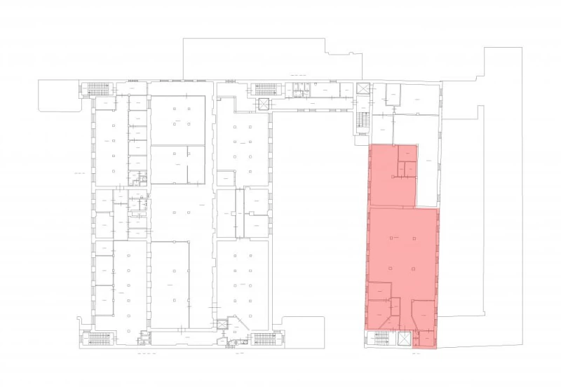
Боровая-зА-02 529.5 кв.м Производство 1040
529.5 м²
площадь1040 ₽
за м²550 680 ₽
за месяц









Характеристики
| Район: | Фрунзенский |
| Метро: | Обводный канал |
| Технопарк | "Боровая" технопарк |
| Этаж: | 2 |
Безопасность
| Охрана: | круглосуточная охрана |
| Контроль доступа: | нет |
Коммуникации
| Телефон: | есть |
| Интернет: | Оптоволокно |
В арендную плату входит
Профессиональное управление
НДС
Оплачивается отдельно
Водоснабжение
Электроснабжение
Отопление
Описание
Предлагается в аренду крупный производственный блок площадью 529.5 кв. м, расположенный на Боровой улице, дом 51. Объект находится вблизи станции метро "Обводный канал". Транспортная доступность обеспечивается набережной Обводного канала и Лиговским проспектом. Производственные помещения оснащены выделенной электроэнергией, отоплением, освещением, холодным водоснабжением и водоотведением. Высокие потолки (3,37 м) позволяют разместить необходимое оборудование, станки и стеллажи для хранения сырья и готовой продукции. По отдельному запросу предоставляется доступ к высокоскоростному интернету и цифровой телефонии для организации коммуникаций и автоматизации производства. Для обеспечения высокого уровня безопасности ведется круглосуточная охрана с видеонаблюдением. Доступ на территорию осуществляется по электронным пропускам. Установлена пожарная сигнализация. На территории имеется грузовой лифт грузоподъемностью 0,5 т (размеры: 1,73 х 2,15 м), подъезд для грузового транспорта и ворота размером 3,03 х 3,86 м для загрузки и разгрузки оборудования и материалов. Во внутреннем дворе комплекса оборудована парковка для автомобилей сотрудников и посетителей. Данное помещение идеально подойдет для организации производственного цеха или мастерской с возможностью расширения и размещения необходимого оборудования.
Запись на просмотр
Пользовательским соглашением
Мы свяжемся с вами
в рабочее время
пн-пт с 09:00 до 18:00







