
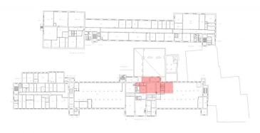
Пром5-зА-03 264.3 кв.м Производство 389
264.3 м²
площадь389 ₽
за м²102 812,7 ₽
за месяц





















Характеристики
| Район: | Кировский |
| Метро: | Нарвская |
| Технопарк | "Промышленная 5" технопарк |
| Этаж: | 3 |
Безопасность
| Охрана: | круглосуточная охрана |
| Контроль доступа: | в наличии |
Коммуникации
| Телефон: | есть |
| Интернет: | Оптоволокно |
В арендную плату входит
Профессиональное управление
НДС
Оплачивается отдельно
Водоснабжение
Электроснабжение
Отопление
Описание
Аренда недорогого помещения 264,3 кв. м под производство в Кировском районе. 3-й этаж здания на Промышленной ул., д. 5. Идеально подойдёт под сборочное производство. Блок состоит из нескольких помещений, что позволяет разделить процессы. Грузовой лифт на 2 тонны (2,4 х 1,9 х 2,2 м) упрощает логистику. Потолки высотой 3,5 метра позволяют разместить любое оборудование, а также организовать склад с возможность вертикального хранения. Инженерные коммуникации: выделенная электроэнергия, освещение, отопление, пожарная сигнализация. Также дополнительно подключаются интернет и телефония. Здание и прилегающая территория находится под круглосуточной охраной. Проход осуществляется по пропускам. Для арендаторов доступна парковка. Рядом пролегают Старо-Петергофский проспект, проспект Стачек, набережная Обводного канала. Станция метро "Нарвская" находится всего в 5 минутах ходьбы. Также в пешей доступности есть остановки наземного общественного транспорта. Рядом расположеныторговые центры.
Запись на просмотр
Пользовательским соглашением
Мы свяжемся с вами
в рабочее время
пн-пт с 09:00 до 18:00






