
Швец41-зА-02 68.3 кв.м Производство 899
68.3 м²
площадь899 ₽
за м²61 401,7 ₽
за месяц
















Характеристики
| Район: | Кировский |
| Метро: | Нарвская |
| Технопарк | "Нарвский" технопарк, Швецова 41 |
| Этаж: | 2 |
Безопасность
| Охрана: | круглосуточная охрана |
| Контроль доступа: | в наличии |
Коммуникации
| Телефон: | есть |
| Интернет: | Оптоволокно |
В арендную плату входит
Профессиональное управление
НДС
Оплачивается отдельно
Водоснабжение
Электроснабжение
Отопление
Описание
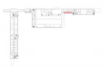
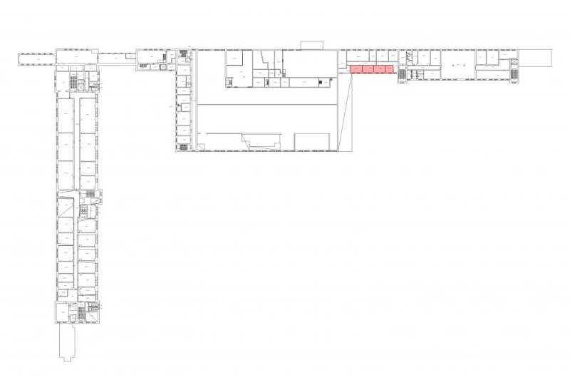
Аренда производственного помещения под швейную мастерскую. Площадь: 68,3 кв. м. Адрес: ул. Швецова, д. 41, 2 этаж. В помещениях высокие потолки 3,85 м – подходит для размещения высоких стеллажей для хранения материалов и готовых изделий. Площадь состоит из 4 смежных помещений – можно разделить производственные процессы. Возможно выполнение ремонтных работ по согласованию. Готовые инженерные коммуникации позволят сразу начать работу. В помещении есть выделенная эл. мощность, освещение, отопление, установлены датчики пожарной сигнализации. Здание и территория охраняются круглосуточно, ведётся видеонаблюдение. Проход, а также заезд транспорта осуществляется по пропускам. Высокоскоростной интернет и цифровая телефония подключаются по запросу арендатора. Дополнительно также предоставим доступ на охраняемую парковку. Производственная площадь сдаётся напрямую от собственника. Помещение находится в здании на территории технопарка "Нарвский". Отличная транспортная доступность обеспечивается пролегающими рядом проспектом Стачек, улицей Маршала Говорова. В пешей доступности находится станция метро "Нарвская". На территории технопарка есть столовая.
Запись на просмотр
Пользовательским соглашением
Мы свяжемся с вами
в рабочее время
пн-пт с 09:00 до 18:00








