
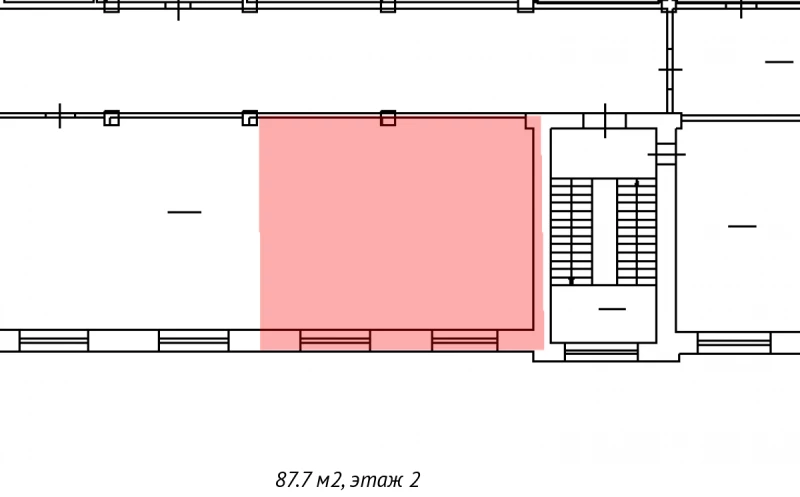
Звенигородская-зК-02 87.7 кв.м Производство 959
87.7 м²
площадь959 ₽
за м²84 104,3 ₽
за месяц
















Характеристики
| Район: | Адмиралтейский |
| Метро: | Звенигородская |
| Бизнес-центр | "Звенигородский" бизнес-центр |
| Этаж: | 2 |
Безопасность
| Охрана: | круглосуточная охрана |
| Контроль доступа: | в наличии |
Коммуникации
| Телефон: | есть |
| Интернет: | Оптоволокно |
В арендную плату входит
Профессиональное управление
НДС
Оплачивается отдельно
Водоснабжение
Электроснабжение
Отопление
Описание
Собственник предлагает в аренду помещение под творческую студию. Звенигородская ул., дом 9-11, БЦ Иван Федоров Высота потолка - 4,6 м. ОСНАЩЕНИЕ: выделенная электроэнергия, освещение, отопление, пожарная сигнализация. Станция метро Звенигородская в 7-ми минутах пешком. На территории БЦ работает столовая и парковка. В стоимость аренды входит НДС.
Запись на просмотр
Пользовательским соглашением
Мы свяжемся с вами
в рабочее время
пн-пт с 09:00 до 18:00








