
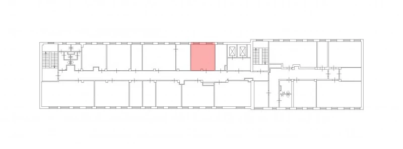
Урал19-зА(корпус10)-05 27.9 кв.м Производство 743
27.9 м²
площадь743 ₽
за м²20 729,7 ₽
за месяц

















Характеристики
| Район: | Василеостровский |
| Метро: | Василеостровская |
| Бизнес-центр | "Урал Плаза" бизнес-центр |
| Этаж: | 5 |
Безопасность
| Охрана: | круглосуточная охрана |
| Контроль доступа: | в наличии |
Коммуникации
| Телефон: | есть |
| Интернет: | Оптоволокно |
В арендную плату входит
Профессиональное управление
НДС
Оплачивается отдельно
Водоснабжение
Электроснабжение
Отопление
Описание
Аренда помещения под чистое производство в бизнес-центре "Урал Плаза". Площадь: 27,9 кв. м. Помещение подойдёт для размещения небольшого ателье по индивидуальному пошиву. Отличный вариант для организации, которая ведёт предварительную запись клиентов. Рядом с помещением находятся два грузо-пассажирских лифта (1 тонна, 1,1 х 2 х 2,1 м), один из которых с возможностью разгрузки со двора. Помещение готово к использованию: установлены противопожарные датчики, есть выделенная электроэнергия, проведены освещение и отопление. Выполнена стандартная чистовая отделка: обои под покраску, потолок подвесной, линолеум на полу. Возможно проведение ремонтных работ по согласованию с собственником. Цифровая телефония и высокоскоростной интернет доступны для подключения в предлагаемом помещении. Каждую неделю проводится влажная уборка. На территории бизнес-центра "Урал Плаза" ведётся круглосуточная охрана и видеонаблюдение. Доступ для транспорта и пешеходов осуществляется по пропускам. Ближайшая станция метро "Приморская". В двух минутах ходьбы находятся остановки наземного транспорта. Рядом с бизнес-центром пролегает набережная Макарова с прямым доступом на ЗСД. В шаговой доступности работаю кафе и магазины.
Запись на просмотр
Пользовательским соглашением
Мы свяжемся с вами
в рабочее время
пн-пт с 09:00 до 18:00








