
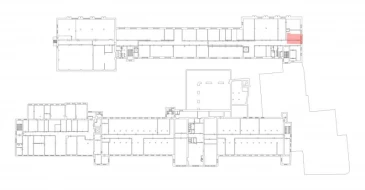
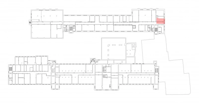
Пром5-зА-03 43.7 кв.м Производство 799
43.7 м²
площадь799 ₽
за м²34 916,3 ₽
за месяц










Характеристики
| Район: | Кировский |
| Метро: | Нарвская |
| Технопарк | "Промышленная 5" технопарк |
| Этаж: | 3 |
Безопасность
| Охрана: | круглосуточная охрана |
| Контроль доступа: | в наличии |
Коммуникации
| Телефон: | есть |
| Интернет: | Оптоволокно |
В арендную плату входит
Профессиональное управление
НДС
Оплачивается отдельно
Водоснабжение
Электроснабжение
Отопление
Описание
Аренда производственного помещения в Кировском районе города. Расположение: Промышленная ул., д. 5. Ближайшая станция метро - "Нарвская". Площадь помещения - 43.7 кв. м. 3-й этаж здания. На этаже есть грузовой лифт г/п 1,5 т. Противопожарная дверь шириной 1,1 м. Проход на территорию по магнитным пропускам. Охрана 24 часа.
Запись на просмотр
Пользовательским соглашением
Мы свяжемся с вами
в рабочее время
пн-пт с 09:00 до 18:00







