
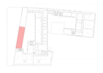
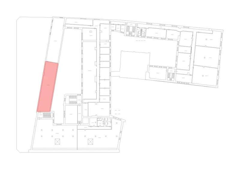
Мира-зА-05 156.1 кв.м Склад 530
156.1 м²
площадь530 ₽
за м²82 733 ₽
за месяц













Характеристики
| Район: | Петроградский |
| Метро: | Горьковская |
| Бизнес-центр | "Троицкий" бизнес-центр |
| Этаж: | 5 |
Безопасность
| Охрана: | круглосуточная охрана |
| Контроль доступа: | в наличии |
Коммуникации
| Телефон: | есть |
| Интернет: | Оптоволокно |
В арендную плату входит
Профессиональное управление
НДС
Оплачивается отдельно
Водоснабжение
Электроснабжение
Отопление
Описание
Складское помещение площадью 156.1 кв. м сдаётся в аренду в пешей доступности от станции метро "Горьковская". Планировка открытая, отделка: подвесные потолки, линолеум. На фото представлена примерная планировка помещения. Оснащение: освещение, отопление, пожарная сигнализация, высокоскоростной интернет и цифровая телефония. Объект находится под круглосуточной охраной, на территории действует система контроля и управления доступом. В здании есть столовая. В шаговой доступности - магазины, аптеки.
Запись на просмотр
Пользовательским соглашением
Мы свяжемся с вами
в рабочее время
пн-пт с 09:00 до 18:00







