
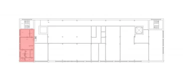
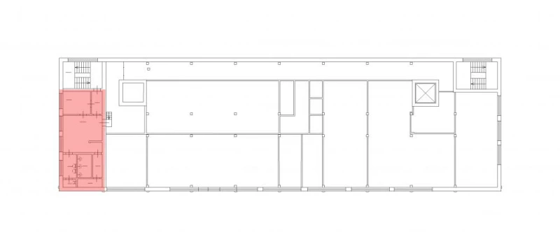
Швец38-зА-04 86.2 кв.м Склад 1040
86.2 м²
площадь1040 ₽
за м²89 648 ₽
за месяц










Характеристики
| Район: | Кировский |
| Метро: | Нарвская |
| Технопарк | "Нарвский" технопарк, Швецова, 38 |
| Этаж: | 4 |
Безопасность
| Охрана: | круглосуточная охрана |
| Контроль доступа: | в наличии |
Коммуникации
| Телефон: | есть |
| Интернет: | Оптоволокно |
В арендную плату входит
Профессиональное управление
НДС
Оплачивается отдельно
Водоснабжение
Электроснабжение
Отопление
Описание
Аренда складского блока площадью 86.2 кв. м от собственника. Расположен на 4 этаже здания по адресу: ул. Швецова, д. 38. Потолки 2,3 м. На стенах плитка, на полу линолеум. В наличии: освещение, отопление, ХВС, водоотведение, пожарная сигнализация. Охрана осуществляется круглосуточно. Возможно работать круглосуточно.
Запись на просмотр
Пользовательским соглашением
Мы свяжемся с вами
в рабочее время
пн-пт с 09:00 до 18:00






