
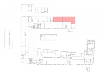
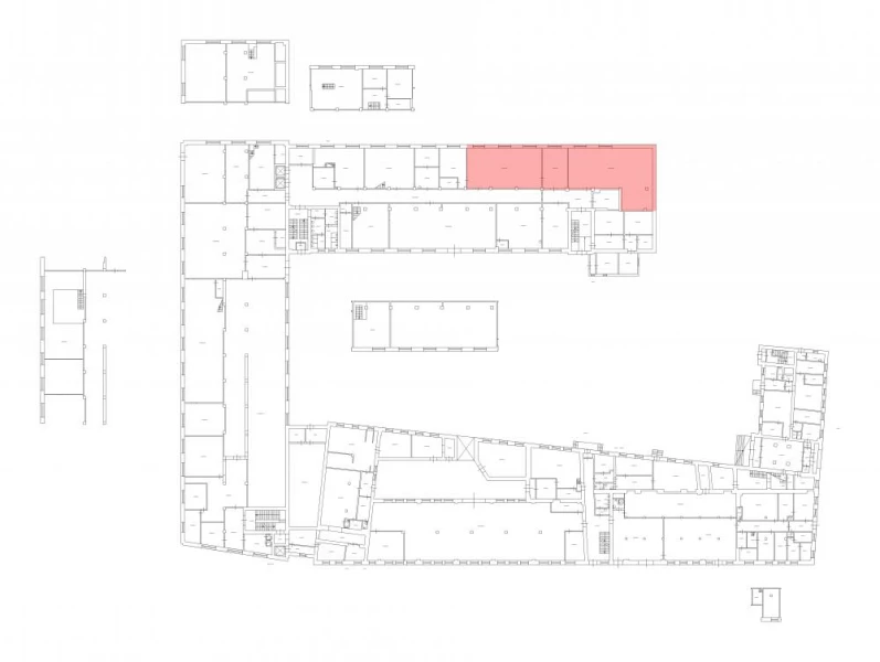
Звенигородская-зК-01 355.7 кв.м Склад 697
355.7 м²
площадь697 ₽
за м²247 922,9 ₽
за месяц















Характеристики
| Район: | Адмиралтейский |
| Метро: | Звенигородская |
| Бизнес-центр | "Звенигородский" бизнес-центр |
| Этаж: | 1 |
Безопасность
| Охрана: | круглосуточная охрана |
| Контроль доступа: | в наличии |
Коммуникации
| Телефон: | есть |
| Интернет: | Оптоволокно |
В арендную плату входит
Профессиональное управление
НДС
Оплачивается отдельно
Водоснабжение
Электроснабжение
Отопление
Описание
Собственник предлагает в аренду крупный склад в Адмиралтейском районе города. 1-й этаж здания на Звенигородская ул., д.9-11. Н потолка 5,29 м, бетонный пол, окрашенные стены. Оснащение: выделенная электроэнергия, отопление, освещение, пожарная сигнализация. Действует система СКУД. Проход осуществляется по электронным картам доступа. Разгрузочный пандус. Услуги: столовая, парковка, круглосуточная охрана.
Запись на просмотр
Пользовательским соглашением
Мы свяжемся с вами
в рабочее время
пн-пт с 09:00 до 18:00







