
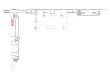
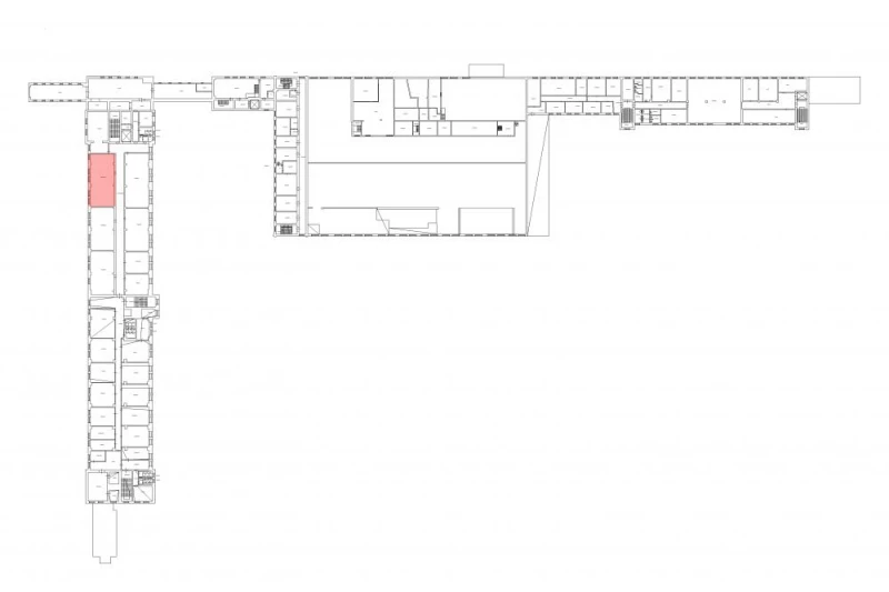
Швец41-зА-02 111.9 кв.м Склад 972
111.9 м²
площадь972 ₽
за м²108 766,8 ₽
за месяц










Характеристики
| Район: | Кировский |
| Метро: | Нарвская |
| Технопарк | "Нарвский" технопарк, Швецова 41 |
| Этаж: | 2 |
Безопасность
| Охрана: | круглосуточная охрана |
| Контроль доступа: | в наличии |
Коммуникации
| Телефон: | есть |
| Интернет: | Оптоволокно |
В арендную плату входит
Профессиональное управление
НДС
Оплачивается отдельно
Водоснабжение
Электроснабжение
Отопление
Описание
Аренда складского помещения для хранения техники. Площадь помещения: 111,9 кв. м. Адрес: ул. Швецова, дом 41. Этаж: 2. Технические характеристики: *Грузовой лифт: грузоподъёмность 3 тонны, габариты 2,1×1,9×2,2 м. *Планировка: правильная прямоугольная форма. *Естественное освещение: 5 окон на улицу (северная сторона). Отделка: *Пол — бетонный с кафельным покрытием. *Стены — бетонные, окрашенные. Инженерные системы: *Отопление. *Освещение. *Система пожарной безопасности. Коммуникации: *Высокоскоростной интернет. *Цифровая телефония. Охрана: *Круглосуточная охрана территории. *Пропускной режим. *Возможность работы 24/7. Удобства для персонала: *Столовая на территории. *Кафе. *Магазин. Парковка: *Гостевая парковка. *Удобный подъезд для грузового транспорта. Преимущества помещения: *Оптимальные условия для хранения техники. *Удобное расположение в Кировском районе. *Развитая инфраструктура бизнес-комплекса. *Возможность организации складской системы хранения. *Комфортные условия для работы персонала. Помещение полностью готово к эксплуатации и отвечает всем требованиям для безопасного хранения оборудования. Для организации просмотра и обсуждения условий аренды свяжитесь с нами.
Запись на просмотр
Пользовательским соглашением
Мы свяжемся с вами
в рабочее время
пн-пт с 09:00 до 18:00







