
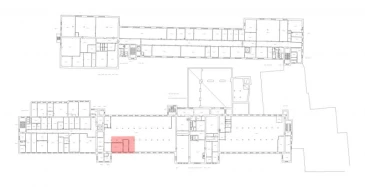
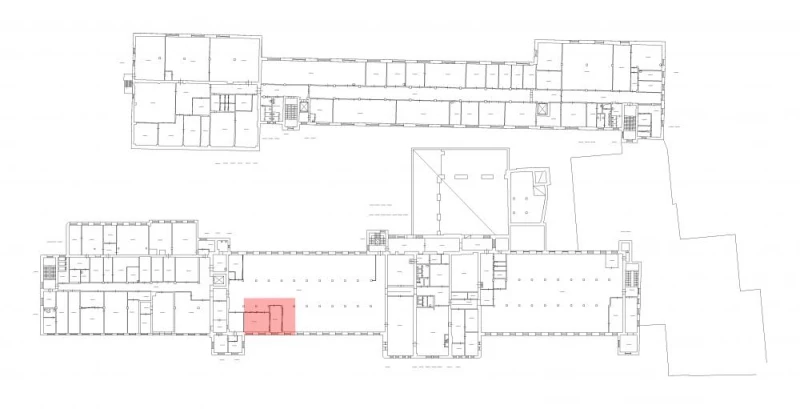
Пром5-зА-03 108.1 кв.м Склад 738
108.1 м²
площадь738 ₽
за м²79 777,8 ₽
за месяц








Характеристики
| Район: | Кировский |
| Метро: | Нарвская |
| Технопарк | "Промышленная 5" технопарк |
| Этаж: | 3 |
Безопасность
| Охрана: | круглосуточная охрана |
| Контроль доступа: | в наличии |
Коммуникации
| Телефон: | есть |
| Интернет: | Оптоволокно |
В арендную плату входит
Профессиональное управление
НДС
Оплачивается отдельно
Водоснабжение
Электроснабжение
Отопление
Описание
Аренда ТЁПЛОГО СКЛАДА площадью 108,1 кв. м. Место нахождения: ул. Промышленная, дом 5. Ближайшая ст.м. "Нарвская" в 5 минутах ходьбы. 3 этаж здания. Есть грузовой лифт. Оснащение: выделенная электроэнергия, освещение, отопление. Площадка под круглосуточной охраной. Действует пропускной режим. Проезд на территорию по предварительно заказанным пропускам.
Запись на просмотр
Пользовательским соглашением
Мы свяжемся с вами
в рабочее время
пн-пт с 09:00 до 18:00








