
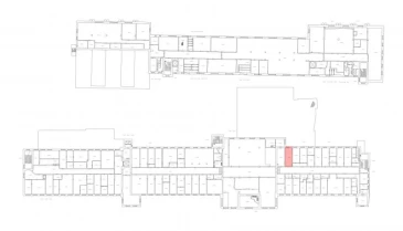
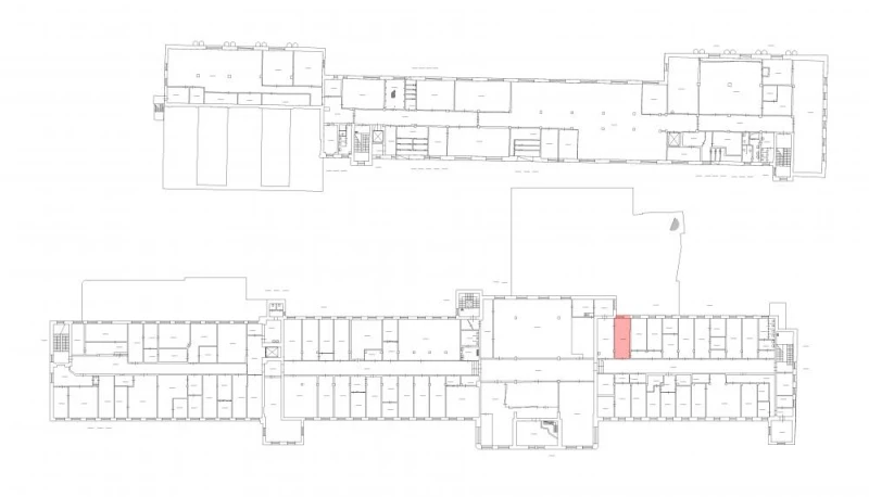
Пром5-зА-04 25.8 кв.м Склад 853
25.8 м²
площадь853 ₽
за м²22 007,4 ₽
за месяц














Характеристики
| Район: | Кировский |
| Метро: | Нарвская |
| Технопарк | "Промышленная 5" технопарк |
| Этаж: | 4 |
Безопасность
| Охрана: | круглосуточная охрана |
| Контроль доступа: | в наличии |
Коммуникации
| Телефон: | есть |
| Интернет: | Оптоволокно |
В арендную плату входит
Профессиональное управление
НДС
Оплачивается отдельно
Водоснабжение
Электроснабжение
Отопление
Описание
Небольшой тёплый склад сдаётся в аренду на Промышленной улице. Площадь: 25,8 кв. м. Подойдёт для хранения личных вещей, а также товаров интернет-магазина. В помещении высокий потолок, благодаря чему возможна установка многоярусных стеллажей. Возможен круглосуточный режим работы. Удобная прилегающая территория для проведения погрузочно-разгрузочных работ. Доступ для транспорта и пешеходов осуществляется по пропускам. Ведётся круглосуточная охрана и видеонаблюдение. В помещении есть освещение и отопление, выделенная эл. мощность, пожарная сигнализация. Отдельно оплачиваются эксплуатационные услуги, интернет и телефония, охраняемая парковка. В пешей доступности есть кафе, столовые и магазины. Станция метро "Нарвская" расположена всего в 5 минутах ходьбы. Набережная Обводного канала и проспект Стачек находятся в непосредственной близости.
Запись на просмотр
Пользовательским соглашением
Мы свяжемся с вами
в рабочее время
пн-пт с 09:00 до 18:00







