
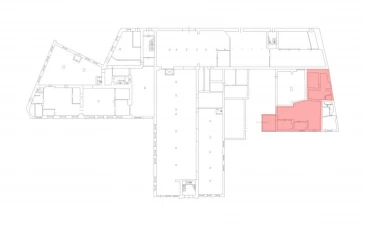
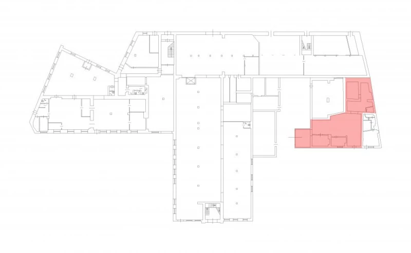
Кр23-зЕ-01 215.4 кв.м Склад 949
215.4 м²
площадь949 ₽
за м²204 414,6 ₽
за месяц















Характеристики
| Район: | Приморский |
| Метро: | Черная речка |
| Бизнес-центр | "Ильич" бизнес-центр |
| Этаж: | 1 |
Безопасность
| Охрана: | круглосуточная охрана |
| Контроль доступа: | в наличии |
Коммуникации
| Телефон: | есть |
| Интернет: | Оптоволокно |
В арендную плату входит
Профессиональное управление
НДС
Оплачивается отдельно
Водоснабжение
Электроснабжение
Отопление
Описание
Предлагаем в аренду функциональное помещение под склад — прямой договор с собственником без комиссий посредников Гибкие условия аренды — обсудим детали под ваши потребности. Площадь: 215,4 кв. м. Расположение: 1‑й этаж здания. Доступ: 2 отдельных входа — удобно для организации погрузочно‑разгрузочных работ. Парковка: удобная стоянка для грузового и легкового транспорта, а также для машин поставщиков и клиентов. Оснащение помещения: -Электроснабжение (достаточная мощность для работы складской техники и освещения); -отопление (обеспечивает сохранность товаров в холодное время года, поддерживает оптимальный микроклимат). Коммуникации: -Цифровая телефония; -высокоскоростной интернет (подходит для систем учёта, видеонаблюдения и организации рабочих мест персонала). Особенности помещения для складской работы: -Пол: ровный бетонный — выдерживает высокие нагрузки, подходит для размещения стеллажей, штабелёров, погрузчиков и тяжёлого складского оборудования; -пространство: открытая планировка позволяет гибко зонировать площадь под конкретные задачи (зоны приёмки, хранения, комплектации заказов, отгрузки и т. д.); -высота потолков: достаточная для установки многоуровневых стеллажей и эффективного использования вертикального пространства; -возможность организации дополнительных перегородок при необходимости. Безопасность и контроль: -Охрана: круглосуточное дежурство охранного персонала; -контроль доступа: пропускной режим — гарантирует защиту товаров и оборудования, обеспечивает конфиденциальность логистических операций; -пожарная сигнализация и средства пожаротушения в соответствии с нормативами. Почему это выгодное предложение? -Прямой договор с собственником — без переплат и скрытых комиссий; -готовность к эксплуатации: помещение оборудовано всем необходимым для старта складской деятельности; -удобная логистика: два входа и просторная парковка упрощают погрузочно‑разгрузочные операции; -безопасность и надёжность: охраняемая территория и продуманная инфраструктура снижают операционные риски. Хотите узнать больше? Для получения подробной информации, уточнения условий аренды и организации просмотра помещения свяжитесь с нашим колл‑центром. Мы оперативно ответим на все вопросы и поможем подобрать оптимальное решение для вашего бизнеса!
Запись на просмотр
Пользовательским соглашением
Мы свяжемся с вами
в рабочее время
пн-пт с 09:00 до 18:00







