
ПушкинМоск-зА-02 75.2 кв.м Торговля 699
75.2 м²
площадь699 ₽
за м²52 564,8 ₽
за месяц









Характеристики
| Район: | Пушкинский |
| Метро: | Купчино |
| Торговый центр | Пушкин, Московская, 25 |
| Этаж: | 2 |
Безопасность
| Охрана: | круглосуточная охрана |
| Контроль доступа: | в наличии |
Коммуникации
| Телефон: | есть |
| Интернет: | Оптоволокно |
В арендную плату входит
Профессиональное управление
НДС
Оплачивается отдельно
Водоснабжение
Электроснабжение
Отопление
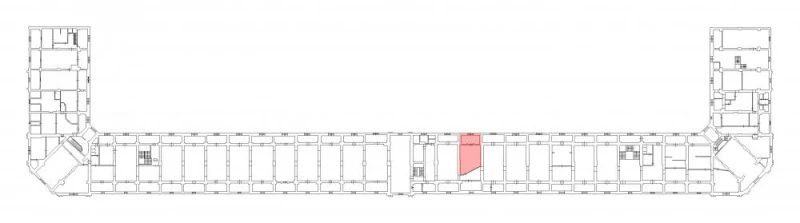
Описание
Собственник предлагает в аренду ТОРГОВОЕ ПОМЕЩЕНИЕ в Пушкине. Помещение ПЛОЩАДЬЮ 75,2 кв. м расположено на втором ЭТАЖЕ ТК на Московской ул., д. 25. Выполнен ЕВРОРЕМОНТ: подвесной потолок типа "Армстронг", окрашенные обои, кафель на полу. К услугам арендаторов: высокоскоростной интернет, цифровая телефония. Ведётся КРУГЛОСУТОЧНАЯ ОХРАНА. Для получения более подробной информации свяжитесь с колл-центром.
Запись на просмотр
Пользовательским соглашением
Мы свяжемся с вами
в рабочее время
пн-пт с 09:00 до 18:00







