
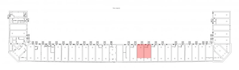
ПушкинМоск-зА-00 203.5 кв.м Торговля 149
203.5 м²
площадь149 ₽
за м²30 321,5 ₽
за месяц







Характеристики
| Район: | Пушкинский |
| Метро: | Купчино |
| Торговый центр | Пушкин, Московская, 25 |
| Этаж: | подвал |
Безопасность
| Охрана: | круглосуточная охрана |
| Контроль доступа: | в наличии |
Коммуникации
| Телефон: | есть |
| Интернет: | Оптоволокно |
В арендную плату входит
Профессиональное управление
НДС
Оплачивается отдельно
Водоснабжение
Электроснабжение
Отопление
Описание
Сдаётся в аренду торговый блок общей площадью 203.5 кв. м на Московской улице, дом 25. Рядом пролегают улица Оранжерейная, Октябрьский и Софийский бульвары, Московское шоссе. До Санкт-Петербурга на автобусе, машине или маршрутном такси можно доехать за 25-30 минут. Здание оборудовано надежными инженерными системами и коммуникациями. Склады отапливаются, оснащены электричеством и освещением. Внутри бетонные пол и стены, потолки высотой 1,6 - 2,10 м, имеются отдельные входы. Вход в помещения через рынок. Доступ соответствует режиму работы рынка: пн.-суб.: 8:00-19:00, вс.: 8:00-17:00. 2-й пн. месяца - санитарный день. Охрана 24 часа.
Запись на просмотр
Пользовательским соглашением
Мы свяжемся с вами
в рабочее время
пн-пт с 09:00 до 18:00





